TILE ROOF HOUSE บ้านอยู่สบาย ในสภาพอากาศแบบมรสุมเขตร้อน
TILE ROOF HOUSE บ้านอยู่สบาย ในสภาพอากาศแบบมรสุมเขตร้อน

TILE ROOF HOUSE บ้านอยู่สบายในสภาพอากาศแบบมรสุมเขตร้อน

บ้านอยู่สบาย Tile Roof House คือบ้านที่ใช้ความลาดเอียงของหลังคาทรงจั่ว ซึ่งพบได้บ่อยในบ้านพื้นถิ่นดั้งเดิมของเวียดนาม เป็นจุดเริ่มต้นทางความคิดในการออกแบบ

บ้านอยู่สบาย ในสภาพอากาศแบบมรสุมเขตร้อน

บ้านอยู่สบาย Tile Roof House

เพื่อให้บ้านสอดรับไปกับสภาพอากาศแบบมรสุมเขตร้อน ตามพื้นที่ตั้งอย่างกรุงโฮจิมินห์ อันประกอบด้วยสองฤดูกาล คือ ฤดูฝนกับฤดูร้อน

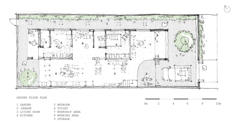
“K59atelier” ทีมสถาปนิกท้องถิ่น ผู้ออกแบบสถาปัตยกรรมสำหรับการอยู่อาศัยหลังนี้ซึ่งบรรจุความต้องการของครอบครัวที่ประกอบด้วยสมาชิกสามรุ่นเอาไว้ จึงออกแบบหลังคากระเบื้องดินเผาผืนใหญ่ครอบทับพื้นที่ใช้สอยทั้งหมดเอาไว้อย่างมีนัย

หนึ่งเพื่อทำให้บ้านดูกลมกลืนบริบท และสองเพื่อให้บ้านปรับตัวตามสภาพอากาศ และทิศทางของแสงอาทิตย์ที่ส่องปะทะตัวอาคารในแต่ละช่วงเวลาของวัน

บ้านอยู่สบาย Tile Roof House

โดยหลังคากระเบื้องขนาดใหญ่จะครอบคลุมพื้นที่ทึบหนาสำหรับพักผ่อนนอนหลับทางด้านทิศตะวันออก และพื้นที่โปร่งเบาสำหรับนั่งเล่นทางด้านทิศตะวันตก

ซึ่งการเลือกใช้รูปแบบหลังคาที่มีความลาดชันสูงนี้ ประกอบกับการเลือกใช้ประตูและหน้าต่างไม้ระแนง ยังช่วยให้แสงลอดผ่านและเกิดลมไหลเวียนเข้าออกได้ดี มีอากาศถ่ายเททั่วถึงทั้งบ้านอีกด้วย

ออกแบบ: K59 atelier
ทีมออกแบบ: Phan Lâm Nhật Nam, Trần Cẩm Linh, Nguyễn Phương Thảo, Võ Ngọc Thanh Tuấn

ภาพ: K59 atelier