ส่องแปลนบ้านสไตล์ลักชัวรี่ เรียบหรู น่าอยู่สุดๆ
Luxury House Plan หรือแปลนบ้านสไตล์ลักชัวรี่ เหล่านี้ ออกแบบมาเป็นอย่างดี ไม่เพียงโชว์ความเรียบหรู ดูดี แต่ยังเปี่ยมด้วยบรรยากาศน่าอยู่ ลองไปส่องแต่ละหลังกันเลย
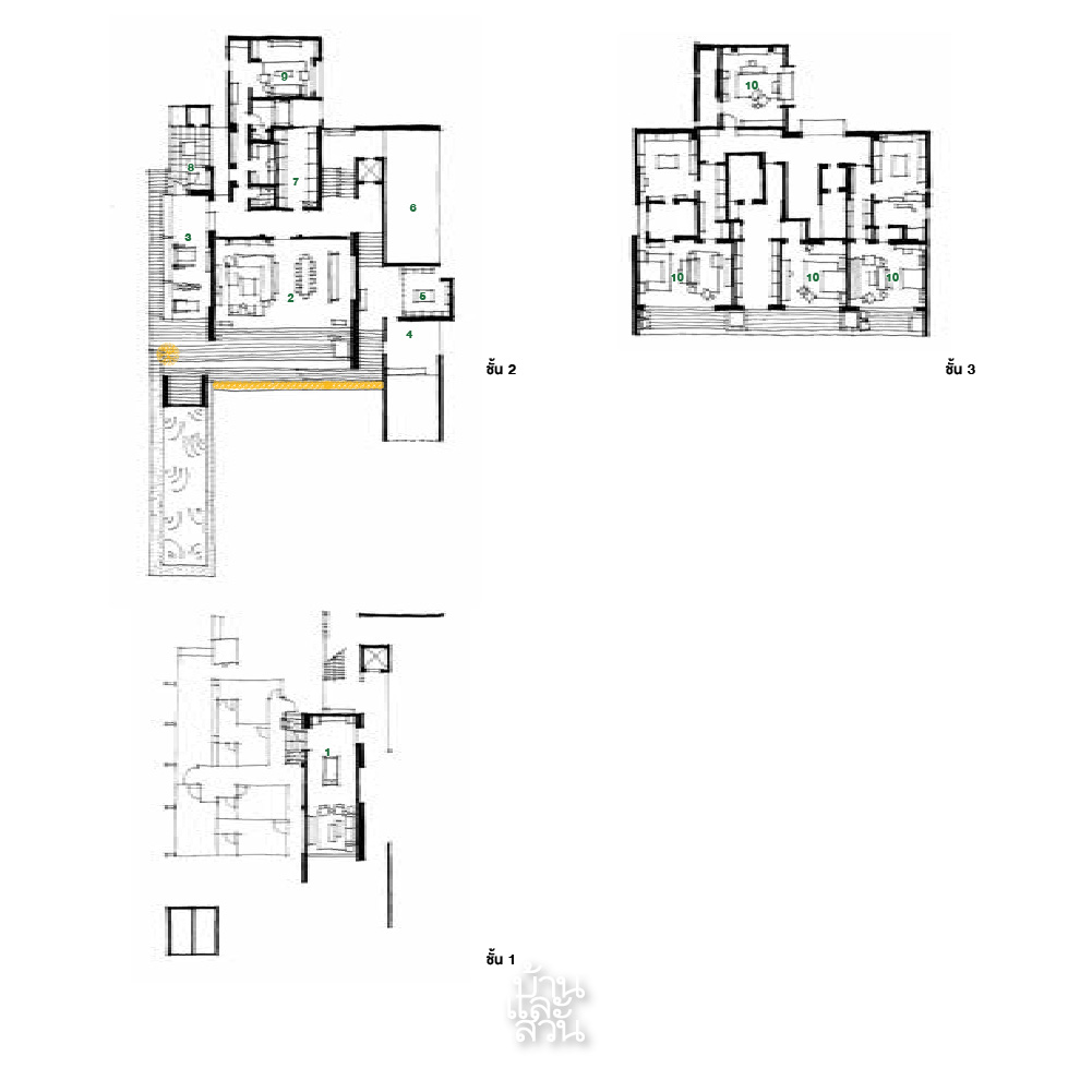
V60 House บ้านโมเดิร์นของนักบินที่เปลี่ยนจากการมองปุยเมฆมาชมสวน
- เจ้าของ : คุณกฤษณ์ สินธวานนท์ – คุณภัทร์วลัย ชาญเชี่ยว
- ออกแบบสถาปัตยกรรม – ตกแต่งภายใน – ภูมิสถาปัตยกรรม : WARchitect โดยคุณธาวิน หาญบุญเศรษฐ คุณพศวัต อปริมาณ
Luxury House Plan ของบ้านโมเดิร์นหลังนี้ออกแบบให้มีพื้นที่เปิดซึ่งสามารถสัมผัสธรรมชาติได้มากที่สุด มีต้นไม้แทรกแผ่ร่มเงาทั่วบริเวณ แม้จะอยู่กลางเมืองแต่ก็เงียบสงบ โดยสร้างให้อยู่ติดกับบ้านคุณพ่อคุณแม่ เพื่อให้สามารถดูแลทั้งสองท่านได้แม้จะแยกบ้านออกมา พร้อมทำสระว่ายน้ำและส่วนออกกำลังกายแยกจากตัวบ้าน เพื่อให้คุณพ่อคุณแม่และเครือญาติสามารถมาใช้ร่วมกันได้โดยไม่รบกวนความเป็นส่วนตัวภายในบ้าน >> อ่านต่อ




บ้านโมเดิร์นสีดำ อยู่สบายในอ้อมกอดขุนเขา
- เจ้าของ : คุณภาวิต – คุณมยุรี จิตรกร
- ออกแบบสถาปัตยกรรม – ตกแต่งภายใน : Anupap Design Practice Co.,Ltd.
- ออกแบบภูมิทัศน์ : คุณจิระ จิตรกร
บ้านโมเดิร์นสีดำที่เชื่อมสเปซบ้านและธรรมชาติให้เป็นหนึ่งเดียวกัน คำนึงถึงความสบายในการอยู่อาศัย และสะสมผลงานของมุราคามิ ศิลปินป็อปอาร์ตที่เห็นแล้วต้องว้าว >> อ่านต่อ




CASA CLOUD บ้านที่เชื่อมโยงธรรมชาติสู่พื้นที่ภายใน
- เจ้าของ: คุณชาลี สมุทรโคจร
- ออกแบบ: BOONDESIGN โดย คุณบุญเลิศ เหมวิจิตรพันธ์
- ภาพ: Wison Tungthunya
บ้านหลังนี้คือการบรรจบกันของธรรมชาติอันสวยงามสู่พื้นที่พักอาศัย ภายใต้สถาปัตยกรรมที่เรียกว่า “บ้าน” ซึ่งได้รับการออกแบบโดย BOONDESIGN เกิดเป็นอาคารที่งดงามด้วยเส้นสายบนความสงบเรียบนิ่ง สมชื่อ Casa Cloud ก้อนเมฆที่เป็นจุดบรรจบระหว่างผืนดินกับผืนฟ้า >> อ่านต่อ




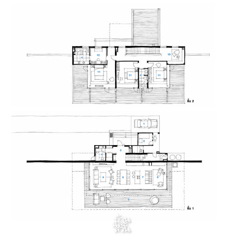
บ้านกลางสวน ที่เปิดมุมมองรับธรรมชาติรอบตัว
- เจ้าของ : คุณเดโช สว่างรุ่งเรืองกิจ และคุณดวงดาว รัตนวงศ์ชัย
- สถาปนิก : PVWB Studio โดยคุณวิชญ์วัส บุญประสงค์
บ้านหลังนี้วางผังตัวอาคารเป็นรูปตัวที (T) ไปตามพื้นที่ สถาปนิกจึงสร้างคาแร็กเตอร์ให้พื้นที่ยาวๆ ด้วยการแบ่งโซนนิ่งของบ้านผ่านคอร์ตยาร์ดสองคอร์ต คอร์ตแรกอยู่กลางระหว่างห้องรับแขกกับห้องรับประทานอาหาร ส่วนอีกคอร์ตเป็นพื้นที่สวนส่วนตัวใกล้ห้องนอน ทั้งสองคอร์ตเน้นปลูกต้นไม้ใหญ่ให้ความร่มรื่นเพื่อให้เป็นเหมือนปอดธรรมชาติส่วนตัวในบ้าน ตัวบ้านยังมีรายละเอียดของการใช้วัสดุที่เน้นความดิบเท่ของผนังอิฐสีเทาซึ่งจัดวางแพทเทิร์นใหม่ให้ต่อเนื่องกับบล็อกช่องลมผสมกับความเรียบในโทนสีขาวสะอาดตาภายในเพื่อให้บ้านดูโปร่งสบายอยู่ท่ามกลางพื้นที่สีเขียว >> อ่านต่อ




บ้านโมเดิร์นทรอปิคัล ที่รับลมและวิวจากสวน 4 ฤดู
- เจ้าของ: คุณสารวุฒิ ดลสุขกุล และครอบครัว
- สถาปนิก: Somdoon Architects โดยคุณกมลรัตน์ อนันตสุวัฒน์ คุณฐิติพรรณ เชื้อสวัสดิ์ คุณพันธุ์พงษ์ วิวัฒน์กุล คุณพิบูลย์ อมรจิรพร คุณศุภรัตน์ วรเลิศชัยฤทธิ์ คุณสุภัทร วงษ์รัตนะ
- ภูมิสถาปนิก: Sanitas Studio โดยคุณสนิทัศน์ ประดิษฐ์ทัศนีย์ คุณวงศ์วริศ ศิวัฒน์วราสุข และคุณกรองกาญจน์ อัครเอกฒาลิน
บ้านโมเดิร์นทรอปิคัลหลังใหญ่ ที่สถาปนิกออกแบบให้ลมไหลผ่านได้ตลอดทั้งชั้นล่าง และยังรับวิวสวนสวยได้จากทุกมุมมอง >> อ่านต่อ




บ้านสีขาวโมเดิร์น ดีไซน์ที่ไม่เป็นภาระเมื่อเข้าวัยเกษียณ
- เจ้าของ : คุณปภาวี – คุณชญานิศ จิณสิทธิ์
- ออกแบบสถาปัตยกรรม-ตกแต่งภายใน : THK Design and Solutions Co.,Ltd.
- ผลิตบิลท์อิน : Charri
บ้านตากอากาศที่ตั้งอยู่ในโครงการของสนามกอล์ฟ ด้านหนึ่งติดถนนและอีกด้านติดสนามกอล์ฟซึ่งมีฉากหลังเป็นคุ้งน้ำกว้าง ล้อมด้วยทิวไม้และสนามหญ้าเขียวขจี ให้ทั้งความรู้สึกสงบ ร่มรื่น แต่ก็มีชีวิตชีวา ด้วยกีฬาตีกอล์ฟนั้นเป็นกิจกรรมโปรดของครอบครัว บรรยากาศที่สวยงามจึงเป็นจุดเด่นของพื้นที่ และนำมาเป็นแนวคิดหลักของบ้านที่อยากให้มองเห็นวิวเสมือนภาพในเฟรม และเป็นฉากให้แต่ละห้อง จึงเป็นที่มาขององค์ประกอบบ้านที่มีเส้นสายเป็นกรอบมุมทรงสี่เหลี่ยม เพื่อสร้างมุม ระยะ และองศาในการมองให้สวยงามยิ่งขึ้น โดยยกระดับพื้นบ้านให้สูงกว่าสนามกอล์ฟประมาณ 2 เมตร ทั้งเพื่อเปิดมุมมองให้กว้างและสร้างขอบเขตพื้นที่บ้านให้แยกจากสนามกอล์ฟโดยไม่ต้องทำรั้ว รวมถึงการออกแบบพื้นที่ให้ต่อเนื่องกันระหว่างภายในบ้านกับภายนอกบ้าน และระหว่างพื้นที่บ้านกับพื้นที่เปิดโล่งของสนามกอล์ฟ >> อ่านต่อ




บ้านริมน้ำที่เชื่อมต่อธรรมชาติแบบ Inside-out / Outside-in
- ออกแบบ : makeAscene โดยคุณพิชยา รัตน์ปิยะสุนทร คุณธีรยุทธ วุฒิวงศ์ธนกิจ และคุณชิษณุพงศ์ รุ่งเลิศนิรันดร์
- ตกแต่งภายใน : คุณเมธิกา แตงแก้วฟ้า และคุณหทัยชนก ศิริอุดมเดชกุล
- ก่อสร้าง : บริษัทเฮดรูม เอสเตท จำกัด
บ้านตากอากาศริมทะเลสาบสไตล์ทรอปิคัลโมเดิร์นที่เปิดมุมมองรับวิวริมน้ำได้กว้างสุดๆ แม้จะนั่งอยู่ในบ้านก็เสมือนได้เอาตัวไป “แช่วิว” อยู่ท่ามกลางธรรมชาติ รองรับการมาพักผ่อนและทำกิจกรรมของครอบครัว และมีมุมทำกิจกรรมสำหรับคนแต่ละวัย >> อ่านต่อ




บ้านโมเดิร์นรีโนเวต ในสเปซแห่งความทรงจำ
- เจ้าของ : คุณกรกนก เชาว์ปรีชา – คุณวุฒิชัย นันทิวาวัฒน์
- ออกแบบสถาปัตยกรรม-ตกแต่งภายใน-ก่อสร้างภายใน : DAY Develop
- ออกแบบสวน : REAL space maker โดยคุณวัลลภ เพชรรัตน์
- อินทีเรียร์สไตลิสต์ : Jeedwonder Co.,Ltd.
บ้านรีโนเวตสไตล์โมเดิร์น มีจุดเริ่มต้นจากความห่วงใยคุณแม่ และต้องการทำสระว่ายน้ำให้คุณแม่ออกกำลังกายเพื่อกายภาพตามที่คุณหมอแนะนำ นำมาสู่การรีโนเวตบ้านทั้งหลังที่แทบทำใหม่ทั้งหมด เพื่อให้ตอบโจทย์วิถีชีวิตของสมาชิกทั้ง 6 คนในครอบครัว โดยเฉพาะลูกชาย 2 คน ที่เติบโตสู่วัยรุ่น และ คุณพ่อคุณแม่ที่เข้าสู่วัยเกษียณ จึงมีความต้องการใช้พื้นที่เปลี่ยนไป >> อ่านต่อ




เรียบเรียง : Tarnda
ภาพ : คลังภาพบ้านและสวน