10 แบบแปลนบ้านโมเดิร์น ดีไซน์สวย ฟังก์ชันครบ อยู่สบายแบบไทยๆ
แบบแปลนบ้านโมเดิร์น ทั้ง 10 หลังนี้ เป็นผลงานการออกแบบสถาปัตยกรรมแนวทันสมัยที่ตอบโจทย์ทั้งในด้านดีไซน์สวยงาม มีฟังก์ชันอำนวยความสะดวกครบครัน และออกแบบให้อยู่ได้อย่างสบาย เข้ากับวิถีแบบคนไทยด้วย
บ้านไม้โมเดิร์น ที่ใช้ครีบหินแบ่งสเปซและกั้นแดด
- เจ้าของ : คุณสุพรรณี วิจิตพาวรรณ และคุณขจี เกศจุมพล
- สถาปนิก : WARchitect โดยคุณธาวิน หาญบุญเศรษฐ
แบบแปลนบ้านโมเดิร์น หลังนี้เป็นงานสุดท้าทายของสถาปนิกและช่างก่อสร้าง ทั้งการเลือกใช้วัสดุธรรมชาติแท้ๆ ของหินและไม้ ทั้งขนาดที่ใหญ่เป็นพิเศษของวัสดุ และการติดตั้งแบบเหนือชั้น เปรียบเหมือนรถสปอร์ต์ที่ขับยากแต่สนุก >> อ่านต่อ


บ้านโมเดิร์น ของนักบินที่เปลี่ยนจากการมองปุยเมฆมาชมสวน
- เจ้าของ : คุณกฤษณ์ สินธวานนท์ – คุณภัทร์วลัย ชาญเชี่ยว
- ออกแบบสถาปัตยกรรม – ตกแต่งภายใน – ภูมิสถาปัตยกรรม : WARchitect โดยคุณธาวิน หาญบุญเศรษฐ คุณพศวัต อปริมาณ
แบบบ้านสไตล์โมเดิร์น สีเทาดำ ที่ออกแบบให้มีพื้นที่เปิดซึ่งสามารถสัมผัสธรรมชาติได้มากที่สุด มีต้นไม้แทรกแผ่ร่มเงาทั่วบริเวณ แม้จะอยู่กลางเมืองแต่ก็เงียบสงบ โดยสร้างให้อยู่ติดกับบ้านคุณพ่อคุณแม่ เพื่อให้สามารถดูแลทั้งสองท่านได้แม้จะแยกบ้านออกมา พร้อมทำสระว่ายน้ำและส่วนออกกำลังกายแยกจากตัวบ้าน เพื่อให้คุณพ่อคุณแม่และเครือญาติสามารถมาใช้ร่วมกันได้โดยไม่รบกวนความเป็นส่วนตัวภายในบ้าน >> อ่านต่อ


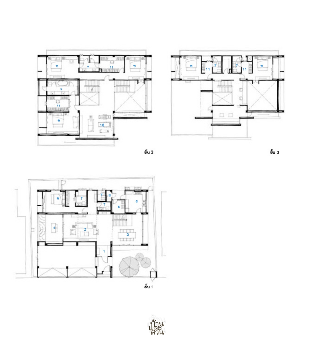
บ้านโมเดิร์นทรงกล่องของพี่น้องที่แชร์คอร์ตเพื่อขยายความสุข
- เจ้าของ : ครอบครัวธันยเกียรติ์
- สถาปัตยกรรม : GREYSPACE Co.,Ltd. โดยคุณอัศจร์กร ธันยเกียรติ์ คุณพิชัย กาวิแหง คุณธีรสิทธิ์ ป้องจีนาเพศ
- ตกแต่งภายในและภูมิสถาปัตยกรรม: Phiil design studio co., ltd.
แบบบ้านโมเดิร์น ทรงกล่องสองหลังของพี่น้องที่ออกแบบให้แชร์พื้นที่คอร์ตเพื่อใช้งานร่วมกัน เป็นบ้านพักผ่อนสำหรับให้ทุกคนในครอบครัวได้กลับมารวมตัวกันอีกครั้ง ออกแบบสเปซภายนอกและภายในต่อเนื่องสัมพันธ์กัน มีพื้นที่โล่งและการเว้นระยะห่างที่พอดีเพื่อสอดแทรกธรรมชาติ เกิดเป็นสเปซให้ความสัมพันธ์ของครอบครัวได้ก่อบทสนทนาระหว่างกัน >> อ่านต่อ


บ้านโมเดิร์นสวยเฉียบดั่งภูเขาหิน
- เจ้าของ : คุณเทพลักษณ์ หิรัญชูสกุล และคุณจิรารัตน์ ดิลกรังสรรค์
- ออกแบบสถาปัตยกรรม : HAA STUDIO
- ออกแบบ-ตกแต่งภายใน : MONO TONE และ TREND DÉCOR STUDIO
- ออกแบบภูมิสถาปัตยกรรม : HAA STUDIO และคุณณรงศักดิ์ เขียวรัตนา
- ออกแบบโครงสร้าง : DREAMCATCHER ENGINEERING
จากความต้องการสร้างบ้านที่มีความยูนีค สะดุดตาตั้งแต่แรกเห็น นำมาสู่ แบบบ้านโมเดิร์น ที่ได้แรงบันดาลใจมาจาก ภูเขา แม้น้ำ และต้นไม้ องค์ประกอบทางธรรมชาติที่มาผสมผสานราวกับงานประติมากรรม >> อ่านต่อ


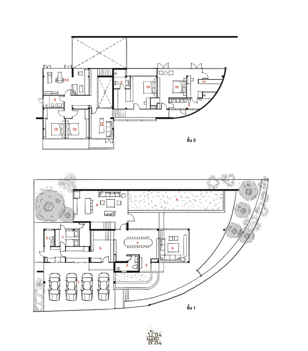
ยกรีสอร์ตมาไว้ในบ้านโมเดิร์นกลางกรุง
- เจ้าของ : ครอบครัวซาโนลารี่
- ออกแบบ : HAA STUDIO
- วิศวกรโครงสร้าง : Dreamcatcher Engineering
- ผู้รับเหมา : Jumper Design Studio
บ้านโมเดิร์นสไตล์รีสอร์ตที่ให้ความรู้สึกเหมือนได้พักผ่อนอยู่ต่างจังหวัด ทั้งที่อยู่กลางกรุง ภายใต้โจทย์ที่เจ้าของบ้านอยากได้บ้านที่ไม่มีรั้ว ดูโปร่งโล่ง แต่ยังคงความรู้สึกปลอดภัย ไว้ รวมถึงให้ความสำคัญกับห้องครัว เนื่องจากเป็นพื้นที่ที่เจ้าของบ้านใช้เวลาแทบทั้งวัน >> อ่านต่อ


บ้านโมเดิร์นภูมิปัญญาไทยที่เชื่อมสระว่ายน้ำและสวนหย่อมมาไว้ใต้ถุน
- เจ้าของ : คุณอลิสา โฉมยา และคุณสมานศักดิ์ อำมฤคโชค
- สถาปนิก : Greenbox Design โดยคุณสุรัตน์ พงษ์สุพรรณ์
บ้านโมเดิร์นที่ยังรักความเป็นไทย โดยเน้นการเปิดพื้นที่ในบ้านให้โล่งออกไปสู่สวนกับสระว่ายน้ำ และมีการยกใต้ถุนสูงเพื่อรับแสงและลมตามฤดูกาล >> อ่านต่อ


บ้านทรงจั่วที่บรรจุความสุขจนเต็มพิกัด
- เจ้าของ : ครอบครัวตรรกพงศ์
- ออกแบบ : WARchitect โดย คุณธาวิน หาญบุญเศรษฐ และคุณพศวัต อปริมาณ
บ้านทรงจั่วสีขาวน่ารักดีไซน์มินิมัลที่สื่อถึงความอบอุ่นของครอบครัว แต่ด้วยที่ดินขนาด 106 ตารางวาที่มีพื้นที่ใช้สอยกว่า 700 ตารางเมตร และยังจำเป็นต้องถอยร่นอาคารมากกว่าปกติ เพราะมีถนนรอบทั้ง 3 ด้าน จึงเป็นความ “แน่น” ในการออกแบบที่สถาปนิกต้องแก้ปัญหา >> อ่านต่อ


บ้านโมเดิร์นสีชมพู ในมิติความแข็งแกร่งและอ่อนโยน
- เจ้าของ : ครอบครัววงศ์ธีระธร
- ออกแบบสถาปัตยกรรม – ตกแต่งภายใน – ภูมิสถาปัตยกรรม : TACHA_Design
- ภาพ: BeerSingnoi
บ้านครอบครัวใหญ่ ที่ออกแบบเป็นบ้านโมเดิร์นสีชมพูที่ผสานหลักฮวงจุ้ย และออกแบบให้เป็นบ้านที่ปลอดภัยสำหรับทุกคน มีการสร้างพื้นที่เปิดโล่งแบบคอร์ตยาร์ด จึงเกิดการระบายอากาศและความชื้นได้ดี ทำให้บ้านมีสภาวะน่าสบาย บ้านนี้มีขนาดพื้นที่ใช้งาน 1,200 ตารางเมตร ออกแบบการใช้งานแยกเป็น 2 ส่วนหลัก คือ ส่วนรับรองแขกให้อยู่โซนด้านหน้าซึ่งแยกทางเข้าและการใช้งานจากส่วนของบ้านที่เป็นพื้นที่ส่วนตัว ชั้นล่างภายในบ้านเป็นพื้นที่ส่วนกลางสำหรับพักผ่อน นั่งเล่น รับประทานอาหาร ชั้นบนประกอบด้วย 3 ห้องนอน และมีชั้นดาดฟ้าแบบมีหลังคาคลุมรองรับกิจกรรมอเนกประสงค์ที่ญาติมิตรมารวมตัวสังสรรค์กัน เป็นจุดที่ลมเย็นมาก และสามารถมองไปด้านสนามหลวงจะเห็นการจุดพลุในช่วงเทศกาล >> อ่านต่อ


บ้านโมเดิร์น ที่ใช้ฟาซาดและผนังโค้งกับต้นไม้เป็นรั้ว
- สถาปนิก : Lamoonta Architects โดยคุณณัฐพนธ์ จิตต์หมวด
บ้านโมเดิร์น หลังนี้อยู่ตรงแนวโค้งของถนนพอดี จึงออกแบบให้มีผนังฟาซาดทรงโค้งกั้นมุมมองข้างบ้านไว้ล้อรับไปกับที่ดินทรงโค้งของโครงการ พร้อมเปิดคอร์ตต้นไม้สร้างมุมธรรมชาติธรรมชาติไว้ภายใน >> อ่านต่อ


บ้านโมเดิร์นสีขาว มีผนังระนาบเป็นช่องเปิดด้านข้าง
- เจ้าของ : คุณณัฐกิจ มัตตะธีรสิทธิ์ และคุณปรียานุช ตั้งกุญแจทอง
- สถาปนิก : Black Pencils Studio โดยคุณชุติ ศรีสงวนวิลาส
บ้านหลังนี้มีหน้าบ้านค่อนข้างติดกับถนนในซอยที่ไม่ได้กว้างมากนัก และยังหันไปทางทิศใต้ซึ่งแสงแดดส่องเกือบทั้งวัน สถาปนิกจึงออกแบบผนังปิดไว้ด้านหน้าเพื่อให้คนในบ้านรู้สึกเป็นส่วนตัว โดยปล่อยให้ผนังขาวรับแสงแดดที่พาดผ่านกลายเป็นแสงและเงาที่หมุนเคลื่อนไหวไปบนผนังอาคารสีขาวได้อย่างมีมิติ แล้วเปิดผนังด้านข้างออกเกือบหมด เพื่อออกแบบแผ่นระนาบขึ้นมาโดยวางเหลื่อมเป็นชั้นๆ ให้เกิดเป็นช่องว่างระหว่างกัน สิ่งที่ตามมา คือลมหมุนเวียนดี ได้แสงธรรมชาติที่ไม่ต้องเปิดไฟในช่วงกลางวันเลย และรู้สึกปลอดภัยที่จะใช้งานในพื้นที่เหล่านั้นโดยไม่สูญเสียความเป็นส่วนตัว >> อ่านต่อ


เรียบเรียง : Tarnda
ภาพ : คลังภาพบ้านและสวน