3 แบบครัวไทยหลังบ้าน งานต่อเติมพร้อมงบประมาณที่ต้องรู้
ทาวน์เฮ้าส์หลังบ้าน
![]()
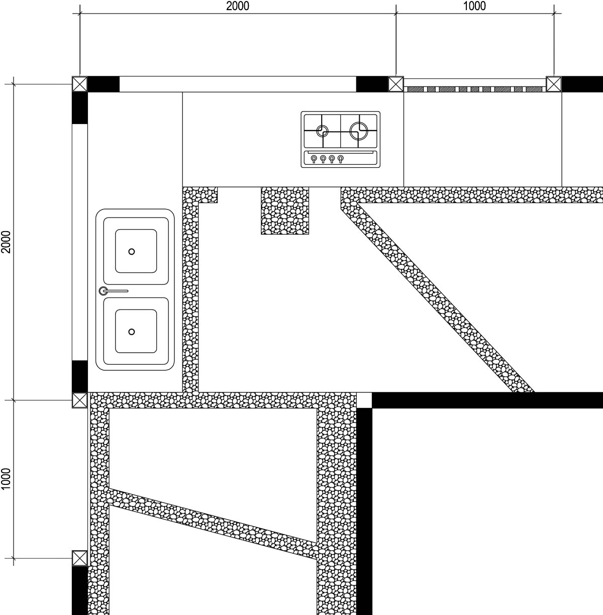
ขนาดพื้นที่ 2.2 x 3 เมตร งบประมาณ 200,000-250,000 บาท
เมื่อซื้อทาวน์เฮ้าส์ สิ่งสำคัญอีกหนึ่งสิ่งที่เจ้าของบ้านต่างให้ความสนใจคือการต่อเติมครัวหลังบ้าน ซึ่งส่วนใหญ่นั้นจะแนบชิดติดกับบ้านหลังอื่น ข้อควรคำนึงที่ไม่ควรมองข้ามคือช่องเปิดแสง หากไม่มีช่องเปิดแสงแล้วจะทำให้ครัวดูมืดและทึบตันเป็นอย่างยิ่ง และระวังเรื่องทิศทางลมไม่ควรให้พัดกลิ่นจากการประกอบอาหารรบกวนบ้านข้างเคียง
และด้วยพื้นที่ที่มีจำกัด สิ่งที่ควรให้ความสำคัญคือการจัดวางฟังก์ชั่นการใช้งาน เฟอร์นิเจอร์สำหรับจัดเก็บอุปกรณ์เครื่องครัวที่ต้องมีเพียงพอในการจัดเก็บให้เรียบร้อย เพื่อให้ส่วนต่อเติมที่เพิ่มขึ้นมานี้เป็นระเบียบน่าใช้งาน
เจ้าของ-ออกแบบ : คุณเชิงชาย ทิพย์สุข
![]()
ครัวไทยโมเดิร์น
![]()

ขนาดพื้นที่ 3 x 3 เมตร งบประมาณ 150,000-200,000 บาท
พื้นที่ว่างหลังบ้านเดี่ยวในโครงการจัดสรร แบบครัวไทยโมเดิร์นออกแบบด้วยโครงสร้างอาคารที่เรียบง่ายแต่เต็มไปด้วยประโยชน์ใช้สอยที่ครบครัน วัสดุเลือกใช้ที่หาได้ทั่วไป ไม่ว่าจะหลังคาไม้ระแนงกรุด้วยพอลิคาร์บอเนต ก่อเคาน์เตอร์ด้วยปูนเปลือย โดยมีช่องลมสำหรับระบายอากาศ เรียบเท่แต่ก็ดูดีทันสมัย
ข้อควรคำนึงถึงอีกเรื่องคือการระบายน้ำในพื้นที่ต่อเติม อย่างแบบครัวหลังนี้ที่ใช้วิธีวางท่อไว้ใต้ดินแล้วตกแต่งพื้นด้วยหินกรวดสลับแผ่นทางเดินคอนกรีต เกิดเท็กเจอร์ที่สวยงามในอีกแบบ
เจ้าของ : คุณพัชรินทร์ คุณไพบูลย์ อมรภิญโญเกียติ
ออกแบบ : บริษัท เพอโกล่า จำกัด
![]()
![]()
TIPS
การต่อเติมครัวไทยนอกบ้าน มีข้อควรคำนึงถึงดังนี้
-หลีกเลี่ยงการวางตำแหน่งครัวไว้ทางทิศใต้หรือทิศตะวันตกเฉียงใต้ของตัวบ้าน เนื่องจากอยู่ต้นลมจะทำให้กลิ่นควันเข้ามาภายในอาคาร
-ตำแหน่งของครัวควรอยู่ในจุดที่ต่อเนื่องกับมุมรับประทานอาหาร เพื่อความสะดวกเมื่อใช้งานจริง
-ขนาดของเคาน์เตอร์ครัวควรพอเหมาะกับใช้งานในชีวิตจริงของเจ้าของบ้าน จะลดปัญหาอุปกรณ์ล้นครัวได้มากทีเดียว
อ่านต่อ
รวม10แบบครัวสวยที่ต้องมีให้ได้
เทคนิคจัดครัวให้ชวนใช้งาน
ติดตามข้อมูลดีๆจากบ้านและสวนได้ที่นี่
เรียบเรียง : JOMM YB.
ภาพจากหนังสือ 12แบบต่อเติมครัวหลังบ้าน สำนักพิมพ์บ้านและสวน