3 แบบครัวไทยหลังบ้าน งานต่อเติมพร้อมงบประมาณที่ต้องรู้
ครัวไทยหลังบ้าน ไม่ว่าจะซื้อบ้านหลังใหม่ หรือมีบ้านหลังเดิมอาศัยอยู่เป็นประจำ สิ่งที่หนึ่งที่หลายๆ คนมองหาและให้ความสำคัญคือการต่อเติมพื้นที่ใช้งานเพิ่ม เพื่อใช้งานให้ครบประโยชน์ตามที่ใจต้องการ ไม่ว่าจะเป็นโรงจอดรถ หรือครัวหลังบ้าน
ครัวไทยหลังบ้าน ส่วนใหญ่มักเป็นครัวที่ต้องใช้งานหนักหน่วง วัสดุและการก่อสร้างจึงต้องคงทนแข็งแรง รวมไปถึงทิศทางตำแหน่งที่ตั้ง และการระบายอากาศที่จะต้องไม่ส่งกลิ่นรบกวนส่วนอื่นๆ ของบ้าน นอกเหนือจากนี้ยังต้องคำนึงถึงงานโครงสร้างที่มักจะเจอปัญหาพื้นที่ต่อเติมทรุดอีกด้วย แต่สำหรับใครที่ยังไม่มีไอเดียว่าจะเลือกต่อเติมครัวแบบไหน ลองพิจารณาครัวต่อเติมทั้ง 3 แบบที่เรานำมาให้ชมกันเลย
**ราคาที่ระบุเป็นราคาโดยประมาณนะคะ
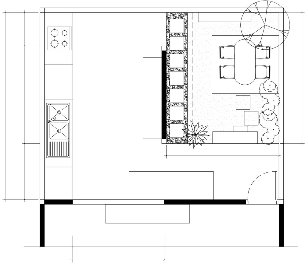
ครัวกลางสวนชวนนั่ง
![]()

ขนาดพื้นที่ 3 x 5 เมตร งบประมาณ 350,000-400,000 บาท
สำหรับบ้านเดี่ยวที่มีพื้นที่หลังบ้านพอตัว สามารถเพิ่มเติมครัวหลังบ้านให้อยู่ร่วมกับพื้นที่สีเขียวอย่างสวยสวยได้ เป็นหนึ่งในการสร้างบรรยากาศสังสรรค์ที่ไม่ได้จำกัดแค่เพียงพื้นที่อินดอร์เท่านั้น
การต่อเติมครัวให้เชื่อมต่อกับสวนมีข้อควรคำนึงคือเรื่องของการวางตำแหน่งของครัวไม่ให้ขวางทางระบายน้ำ เช่นเดียวกับสวนซึ่งจะต้องจัดการไม่ให้เกิดน้ำท่วมขัง ในขณะการเลือกต้นไม้ปลูกควรเลือกเป็นต้นไม้กระถางที่สามารถปรับเปลี่ยนโยกย้ายได้ง่ายและเลือกพรรณไม้ที่ทนร่มได้ดี
เจ้าของ-ออกแบบ : คุณจิรวัฒน์ มหาทรัพย์ถาวร
![]()