แบบบ้านมินิมัล จากบ้านเก่าสู่บรรยากาศนุ่มนวลด้วยโทนสีขาวและไม้ - บ้านและสวน

บ้านมินิมัล ที่รีโนเวตจากบ้านเก่า เพิ่มด้วยพื้นที่คอร์ตอเนกประสงค์

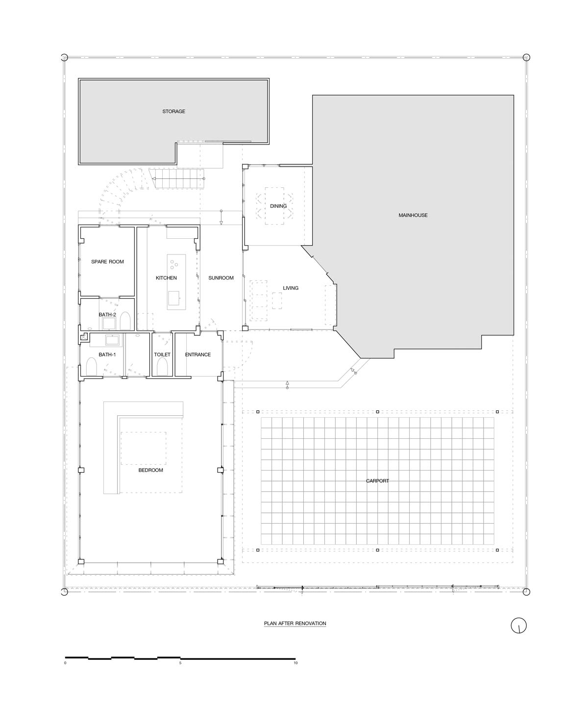
บ้านมินิมัล ที่เกิดจากการเชื่อมต่อบ้านหลังใหญ่และบ้านหลังรองที่อยู่ด้านหน้าให้เป็นหนึ่งเดียว โดยห่อหุ้มพื้นที่รอบบ้านด้วยเเผ่นพอลิคาร์บอเนตโปร่งเเสงเเต่ไม่โปร่งใส 

DESIGNER DIRECTORY
ออกแบบ: OPH Architects

เดิมทีบ้านหลังนี้เป็นบ้านหนึ่งหลังที่มีบ้านอีกหลังหนึ่งตั้งอยู่ด้านหน้า และถูกเรียกว่า “บ้านรอง” ซึ่งบ้านรองนี้ได้ถูกปล่อยเช่าให้ทำธุรกิจต่าง ๆ มาตลอด จนกระทั่งถึงเวลาหนึ่งที่คุณสุกี้-ชมไพศาล และคุณปอย-วิศทา ด้วงวงศ์ศรี เจ้าของบ้านตัดสินใจกลับเข้าอยู่ที่บ้านหลังนี้ ด้วยเหตุผลของทำเลซึ่งอยู่ใกล้กับที่ทำงาน และที่สำคัญคือการที่กำลังจะมีลูกน้อย การีโนเวตบ้านหลังนี้จึงเริ่มต้นขึ้น โดยตั้งใจทำให้เป็น แบบบ้านมินิมัล

แบบบ้านมินิมัล

คุณเค-ไพลิน หงษ์วิทยากร สถาปนิกของการรีโนเวตบ้านหลังนี้ เริ่มต้นจากเเนวคิดการเชื่อมต่อบ้านทั้งสองหลังของคนสามวัยเข้าด้วยกัน ซึ่งคุณเคได้ตีความพื้นที่ใหม่นี้โดยตั้งใจว่า พื้นที่ทั้งหมดจะต้องรู้สึกเป็นพื้นที่เดียวกัน มีความเป็นส่วนตัว แต่ก็ยังรับรู้ถึงสภาวะแวดล้อมภายนอกได้ สิ่งแรกที่ทำให้ภาพรวมของพื้นที่ทั้งหมดเปลี่ยนไปคือการจัดการพื้นที่หน้าบ้านเสียใหม่

“เราแทบไม่ได้แตะบ้านเดิมของคุณพ่อคุณแม่เลย เพียงแค่จัดการส่วนฟาซาดให้เข้ากับพื้นที่ที่สร้างขึ้นใหม่ แต่สิ่งที่เราทำคือการยกหลังคาโรงรถเดิมให้สูงพ้นขึ้นไปจากความรับรู้ เพื่อให้พื้นที่ทั้งหมดเป็นพื้นที่เดียวกัน คุณแม่มองลงมาจากระเบียงก็ยังสามารถเห็นหลาน ๆ วิ่งเล่นได้อยู่ จากนั้นจึงหุ้มพื้นที่ทั้งหมดนี้ด้วยแผ่นพอลิคาร์บอเนตที่โปร่งแสงแต่ไม่โปร่งใส ช่วยให้ไม่สามารถมองเห็นกิจกรรมภายในบ้านจากภายนอกได้เพื่อความเป็นส่วนตัว แต่ยังรู้สึกได้ถึงบริบทเเละความเป็นไปรอบ ๆ บ้านได้อยู่”

โดยพื้นที่ตรงส่วนนี้คุณเคได้ออกแบบให้เป็นเหมือนพื้นที่ร่วม หรือ Inter Section Space ที่ทำหน้าที่คล้ายลานเอ๊าต์ดอร์ แม้จะมีฝนตกก็ยังสามารถใช้งานได้อยู่ พื้นที่ส่วนนี้จึงกลายเป็นลานกิจกรรมหลักของครอบครัวไปโดยปริยาย

แบบบ้านมินิมัล รีโนเวตบ้าน

แบบบ้านมินิมัล

ทางด้านซ้ายของบ้านหลักคือ บ้านที่รีโนเวตขึ้นมาใหม่ สำหรับครอบครัวของคุณสุกี้และคุณปอย ชั้นล่างออกแบบให้ต่อเนื่องกับ Sun  Room และห้องนั่งเล่น-รับประทานอาหาร ด้านหน้าเป็นห้องแบบสตูดิโอไทป์ ที่เมื่อมองจากลานหน้าบ้านจะเห็นเป็นผนังบานกระทุ้ง ซึ่งภายในนั้นได้ออกแบบให้เป็น Double Facade มีบานเลื่อนกระจกขนาดใหญ่อยู่ด้านในอีกชั้นหนึ่ง การออกแบบฟาซาดที่ซ้อนกันเช่นนี้ คุณเคตั้งใจให้เส้นกรอบของบานแต่ละบานทับซ้อนกันอย่างพอดี เพื่อลดเส้นสายที่มีมากเกินไปให้น้อยลง ส่วนของบานกระทุ้งนั้นทำขึ้นเพื่อตั้งใจสร้าง “ความรู้สึกต่อเนื่องของพื้นที่” ให้เชื่อมโยงออกไปยังลานหน้าบ้านได้ “้เพราะถ้าเป็นบานเลื่อนก็จะรู้สึกว่าเป็นหน้าต่างเฉย ๆ แต่บานกระทุ้ง นอกจากจะช่วยสร้างเเสงเงาที่ดีแล้ว การเปิดออกไปยังเหมือนเป็นการเชื่อมโยงทั้งสองพื้นที่เข้าด้วยกันได้อีกทาง เป็นเรื่องของวิธีการเปิดซึ่งส่งผลในเชิงความรู้สึก โดยสามารถเปิดค้างไว้เลย ถ้าอยากเปิดแอร์ก็เเค่ปิดบานเลื่อนกระจกด้านในเท่านั้น”

รีโนเวตบ้านเก่าหลังคาทรงจั่ว ให้งดงามด้วยเส้นสายเรียบนิ่งทันสมัยสไตล์มินิมัล

แบบบ้านมินิมัล

บ้านทั้งสองหลังนั้น มีพื้นที่ซึ่งคุณเคเรียกว่า Sun Room เป็นส่วนเชื่อมโยงพื้นที่ทั้งหมดไว้ด้วยกัน พื้นที่นี้เดิมทีเป็นตรอกที่อยู่ระหว่างบ้านทั้งสองหลัง แต่ด้วยลักษณะของพื้นที่ที่ทั้งเล็กเเละแคบ คุณเคจึงปรับให้พื้นที่ส่วนนี้กลายเป็นเสมือนลานกลางบ้านที่เมื่อเปิดบานเลื่อนของห้องต่าง ๆ โดยรอบก็จะสามารถเชื่อมโยงถึงกันได้หมด ไม่ว่าจะเป็นพื้นที่รับแขก ห้องครัว และห้องรับประทานอาหาร กลายเป็นพื้นที่อเนกประสงค์ขนาดใหญ่ที่ทุกคนในครอบครัวมาพบปะกัน

“เราตั้งใจให้เขาใช้ประโยชน์จากความทับซ้อนของพื้นที่ อย่างพอทำเสร็จแล้วก็จะเห็นเลยว่า ระหว่างที่ปอยทำอาหารอยู่ที่ครัวก็จะสามารถมองผ่านลานตรงนี้ไปเห็นคุณสุกี้กับลูกนั่งอยู่ที่ห้องรับแขกได้ มันทำให้พื้นที่ทั้งหมดกลายเป็นพื้นที่เดียวกัน มีแสงธรรมชาติตกลงมา เราเชื่อว่าสิ่งเหล่านี้คือการสร้างสภาวะการอยู่อาศัยภายในบ้านที่ดี มีทั้งแสงแดดที่เปลี่ยนไปตามเวลา มีลมพัดผ่าน มีต้นไม้ แล้วในอนาคตก็สามารถจัดสวนกระถางเพิ่มเติมได้ ทุก ๆ ห้องสามารถมองเห็นกันผ่านพื้นที่ตรงจุดนี้ เป็นเหมือน Common Area ของทั้งบ้านเก่าและใหม่ให้ทุกคนได้มาใช้เวลาร่วมกัน”

แบบบ้านมินิมัล

 

แบบบ้านมินิมัล

แบบบ้านมินิมัล

แบบบ้านมินิมัล

แบบบ้านมินิมัล

การเลือกใช้วัสดุในบ้านหลังนี้ สังเกตได้ว่าจะเป็นวัสดุสีขาวและไม้เป็นส่วนใหญ่ “เพราะเจ้าของบ้านอยากให้บ้านออกมาสว่างและมีสิ่งรบกวนสายตาน้อยที่สุด เราจึงตั้งใจปรุงแต่งวัสดุให้น้อยที่สุด และเลือกใช้วัสดุที่เหมาะสมกับงบประมาณ อย่างหลายจุดนั้นเราเลือกใช้ไม้อัดยาง ซึ่งพอนำมาขัดผิวและเคลือบแล้วก็พบว่าใช้ได้ดี แต่ในบางจุดที่ต้องการความคงทนเช่น บานประตู ก็เลือกเป็นไม้ตะแบก เพื่อให้เหมาะกับการใช้งานมากขึ้น ดีที่เจ้าของบ้านเองก็เห็นชอบด้วย เรื่องวัสดุนี้จะให้มันออกมาดูดีได้ เราว่ามันอยู่ที่ดีเทลที่เราเลือกใช้ และรู้วิธีที่จะจัดการกับมันมากกว่า จึงมาจบที่วัสดุไม้กับสีขาวอย่างที่เห็น”

แบบบ้านมินิมัล

เมื่อเดินเข้ามาจากคอร์ตกลางบ้าน เราจะได้พบกับ “พื้นที่ส่วนตัว” ที่เป็นพื้นที่ห้องขนาดใหญ่ จัดวางเตียงนอน และฉากกั้นไว้ตรงกลาง โดยทำ Walkin Closet อยู่ด้านหลังของฉากกั้น ก่อนจะนำไปยังทางเข้าห้องน้าที่มุมห้อง ส่วนด้านข้างนั้นใช้วัสดุโปร่งแสงที่ยังพอมองเห็นเงาต้นไม้ที่ภายนอกได้ แต่ก็ทึบพอจะสร้างความเป็นส่วนตัวได้เช่นกัน

“เพราะว่าเจ้าของบ้านเขาอยากได้พื้นที่กึ่งสนามเด็กเล่นห้ลูก ๆ ได้วิ่งเล่น ถ้าดูจากผังก็จะเห็นได้เลยว่าห้องนอนที่โล่งแบบนี้ เพราะลูกเขาสามารถวิ่งเล่นรอบห้องได้อย่างเต็มที่จริง ๆ แล้วพื้นที่ที่เหลือก็เผื่อไว้เอกเขนกนอนเล่นกับลูกได้ เราจึงทุบผนังเดิมออกจนหมด และเลือกใช้ผนังเบาแค่กั้นให้การใช้งานดูเป็นสัดเป็นส่วนก็พอ ห้องนอนนี้แทบทุกอย่างจะเป็นเฟอร์นิเจอร์ลอยตัว แม้แต่โต๊ะทำงาน เพราะการมีลูกเล็กจะทำให้อาจต้องมีการปรับการใช้งานอยู่เรื่อย ๆ ต่อไปในอนาคต”

แบบบ้านมินิมัล

แบบบ้านมินิมัล

และนี่ก็คืออีกหนึ่งตัวอย่างอันน่าสนใจในการรีโนเวตบ้านสำหรับครอบครัวขยาย ด้วยการนำพื้นที่ทับซ้อนภายในบ้านหลังเดิมที่เคยอยู่อาศัยกับพ่อเเม่มาใช้ให้เกิดประโยชน์สูงสุด อีกทั้งการทำคอร์ตภายในบ้านที่โอบล้อมด้วยวัสดุที่สร้างความเป็นส่วนตัว ยังเป็นตัวอย่างที่ดีของการอยู่อาศัยในบริบทเมือง เพราะบางครั้งการออกแบบบ้านอาจไม่จำเป็นต้องแยกการใช้งานขาดออกจากกันเป็นหลัง ๆ อย่างสิ้นเชิง แต่ความเข้าใจในการใช้งานและการสร้างพื้นที่ปฏิสัมพันธ์ที่ดีให้กับคนในครอบครัวต่างหาก จึงจะช่วยให้บ้านกลายเป็นบ้านที่มีชีวิตชีวาได้ในที่สุดนั่นเอง


เจ้าของ : คุณสุกี้ ตุณ ชมไพศาล และ คุณปอย วิศทา ด้วงวงศ์ศรี

สถาปนิก : OPH Architects โดยไพลิน หงษ์วิทยากร /วิศวกร : คุณชัยวัฒน์ ตันติโชติมัย

ก่อสร้าง : บ.ไทยเค็น จำกัด แบบบ้านมินิมัล

เรื่อง :  วุฒิกร สุทธิอาภา
ภาพ : คุณกีรติ อึ้งสุทธิพรชัย เเละคุณณภัทร ภัทรยานนท์
 

บ้านมินิมัลที่อบอุ่น เรียบเท่ในโทนสีธรรมชาติ

บ้านมินิมัลสีขาว แทรกด้วยคอร์ตต้นไม้สีเขียว