แบบบันได ราวกันตก สำหรับบ้านทุกสไตล์ - บ้านและสวน

5 แบบบันไดและราวกันตก

แบบบันได และราวกันตก สำหรับบ้านทุกสไตล์

บันไดเหล็กบางเบา

แบบบันได ราวกันตก บันไดเหล็ก

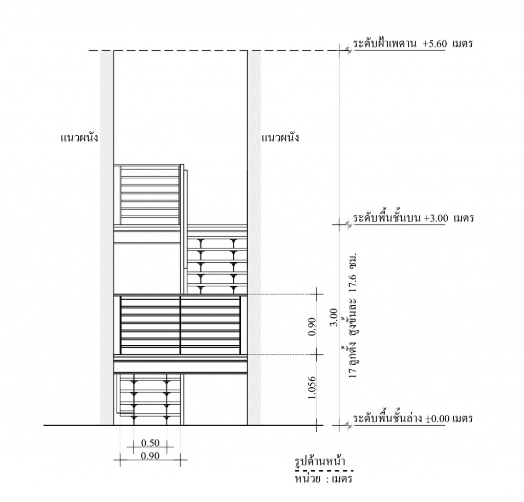
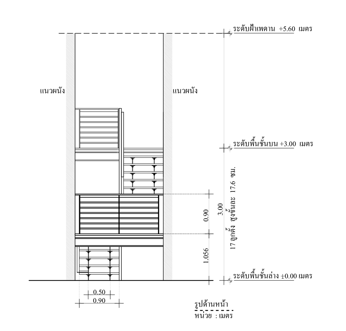
ออกแบบบันไดโปร่งตาทันสมัยด้วยการเลือกใช้เหล็กซึ่งเป็นวัสดุที่แข็งแรง จึงลดขนาดโครงสร้างให้เล็กและบางลง โดยทำแม่บันไดคู่จากแผ่นเหล็กตัดตามรูปขั้นบันได แล้ววางแผ่นไม้พาดเป็นขั้นบันได กรุตะแกรงเหล็กเป็นราวกันตก เหมาะกับบ้านสไตล์โมเดิร์นและลอฟต์ที่เน้นโชว์โครงสร้างเท่ๆ

แบบบันได และราวกันตก

แบบบันไดและราวกันตก

Tip : แนะนำวัสดุกรุผนังอีก 2 ชนิด คือ

ตะแกรงเหล็กฉีก  เป็นการนำแผ่นเหล็กมาฉีกหรือยืดให้เป็นช่องๆ โดยเนื้อเหล็กยังคงเป็นแผ่นเดียวกันอยู่ เพื่อเพิ่มความแข็งแรงและลดน้ำหนักแผ่นโลหะ ตะแกรงเหล็กฉีกจึงมีความแข็งแรง รับน้ำหนักได้มากไม่เสียรูปทรง ผิวหน้ามีความฝืดสูง น้ำหนักเบา และมีลวดลายสวยงาม สามารถใช้งานได้หลากหลาย เช่น ทำรั้ว ขั้นบันได ราวบันได ฝ้าเพดาน พื้น ผนัง ประตู

แผ่นโลหะฉลุลาย  เป็นการนำวัสดุแผ่น เช่น เหล็กแผ่น สเตนเลส อะลูมิเนียม ทองเหลือง ทองแดง มาตัดด้วยลำแสงเลเซอร์เป็นลวดลายตามต้องการ สามารถนำมาตกแต่งเป็นพื้นและผนังโปร่ง รวมทั้งของตกแต่งได้ด้วย

งบประมาณ :  70000 – 80000 บาท

แบบบันไดและราวกันตก

แบบบันไดและราวกันตก

แบบบันไดและราวกันตก

แบบบันไดและราวกันตก

แบบบันไดและราวกันตก