แบบบันได ราวกันตก สำหรับบ้านทุกสไตล์ - บ้านและสวน

5 แบบบันไดและราวกันตก

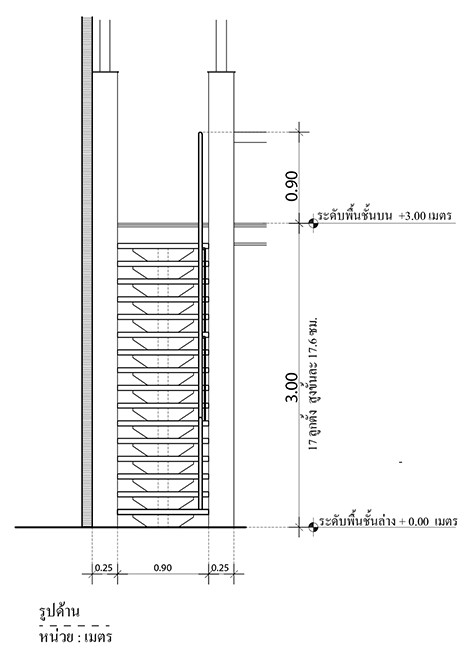
เหล็กพับและแม่บันไดเดี่ยว

แบบบันไดและราวกันตก บันไดเหล็กพับ

โชว์โครงสร้างบันไดเหล็กเรียบเท่ โดยทำแม่บันไดเดี่ยวตรงกลางด้วยเหล็กรูปพรรณ แล้วใช้แผ่นเหล็กพับมุมฉากเป็นขั้นบันไดสำหรับวางลูกนอนไม้ ออกแบบราวจับด้วยสเตนเลสเส้นเดียว เน้นองค์ประกอบน้อยชิ้นให้สวยงามลงตัว เหมาะกับบ้านสไตล์โมเดิร์น

Tip : นอกจากการทำลูกนอนบันไดด้วยไม้จริงแล้ว ยังมีไม้บันไดสำเร็จรูปที่เป็นไม้สังเคราะห์ให้เลือกใข้ มีการออกแบบลบมุมจมูกบันได สามารถนำมาทาสีและติดตั้งได้ง่าย หมดกังวลจากเรื่องปลวก ความชื้น และการผุเปื่อย จึงใช้ได้ทั้งภายในและภายนอกบ้าน

งบประมาณ : 60000 – 70000 บาท

แบบบันไดและราวกันตก บันไดเหล็กพับ

แบบบันไดและราวกันตก บันไดเหล็กพับ

แบบบันไดและราวกันตก บันไดเหล็กพับแบบบันไดและราวกันตก บันไดเหล็กพับแบบบันไดและราวกันตก บันไดเหล็กพับ