บ้านขนาดเล็ก ที่สวนกับบ้านเป็นพื้นที่เดียวกัน
บ้านขนาดเล็ก ของคนรักต้นไม้ กับการออกแบบพื้นที่พักอาศัยโดยผนวกสวนเเละฟังก์ชันการใช้งานต่าง ๆ ให้เชื่อมโยงเป็นหนึ่งเดียวกัน ภายในบ้านบรรยากาศโปร่งสบายเเบบดับเบิ้ลสเปซ
DESIGNER DIRECTORY ออกแบบ: STUDIO LOCOMOTIVE


บ้านขนาดเล็ก หลังนี้ เริ่มต้นจากความชื่นชอบต้นไม้ และรักสัตว์ ของ คุณปริม-ปาริชาติ พัดบุรี อีกทั้งยังมีเป้าหมายที่อยากสร้างบ้านแบบไม่เป็นหนี้ในจังหวัดภูเก็ตบ้านเกิด แต่ด้วยข้อจำกัดทั้งงบประมาณและขนาดที่ดิน คุณโปร-คุณธนาฒย์ จันทร์อยู่ สถาปนิกแห่ง Studio Locomotive จึงออกแบบโดยมุ่งความสำคัญไปที่การตอบสนองรูปแบบการใช้ชีวิตพื้นฐานเป็นเรื่องแรก เช่น เรื่องความปลอดภัย พื้นที่เพื่อการใช้ชีวิตประจำวัน รวมถึงการวางแผนเกี่ยวกับขั้นตอนและความซับซ้อนด้านการก่อสร้าง เพื่อไม่ให้มีผลกระทบกับงบประมาณ ไปพร้อม ๆ กับการช่วยประหยัดพลังงานระหว่างวัน ซึ่งทั้งหมดได้กลายเป็นเป้าหมายของการออกแบบบ้าน ให้เป็นจุดเริ่มต้นของคุณภาพชีวิตที่ดีอย่างที่คู่สามีภรรยาต้องการ



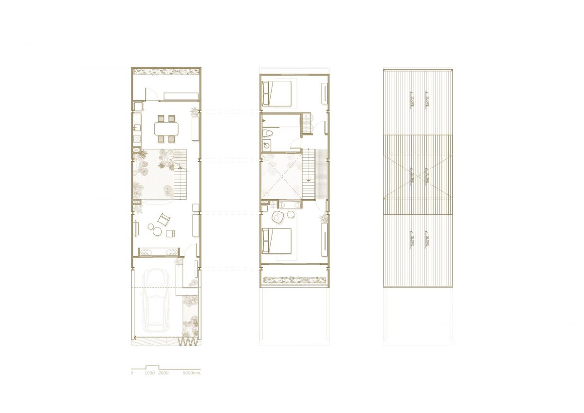
บ้านหลังนี้มีลักษณะด้านหน้าเเคบเเละยาวลึกเข้าไปด้านใน ดูคล้ายกับรูปแบบของอาคารพาณิชย์ แต่ด้วยการตั้งอยู่ในที่ดินของตัวเอง เจ้าของจึงสามารถเปิดช่องด้านข้างอาคารได้ เพื่อให้เเสงเเละอากาศถ่ายเทได้ดี สว่างปลอดโปร่ง ไม่ร้อน โดยได้เลือกทำช่องเปิดด้านหน้า ด้านหลัง และกลางบ้าน โดยเฉพาะช่องเปิดที่กลางบ้าน ซึ่งมีเเสงธรรมชาติส่องเข้ามาจากบนหลังคาที่ยกสูงขึ้น ช่วยให้ความร้อนลอยตัวออกสู่ภายนอกได้ และช่องเปิดนี้ยังใช้หลังคาเเบบใส แสงจึงส่องเข้ามาถึงพื้นที่ใช้สอยทุกส่วนในบ้านได้ ขณะที่บันไดและทางเชื่อมห้องนอนยังทำมาจากเหล็กตะแกรง แสงสามารถลอดผ่านลงมาถึงชั้นล่างอย่างทั่วถึง เหมาะกับการเจริญเติบโตของต้นไม้ซึ่งเป็นคอร์ตสวนอยู่ในบ้าน










บ้านหลังนี้ยังเลือกใช้วัสดุและเทคนิคในการก่อสร้างโดยอิงจากความเข้าใจและความสามารถพื้นฐานของช่างในพื้นที่ งานเหล็กต่าง ๆ การก่อช่องลม ปูนเปลือยขัดมัน ทั้งนี้เพื่อลดความยุ่งยากและการเกิดความผิดพลาด เป็นผลให้ควบคุมงบประมาณได้ดียิ่งขึ้น
พื้นที่ชั้นล่างเน้นฟังก์ชันของการใช้สอยส่วนกลางร่วมกัน จากส่วนนั่งเล่นด้านหน้าแล้วก็ยังมีส่วนรับประทานอาหารและครัวด้านในซึ่งเป็นงานบิลท์อินจุดเดียวในบ้าน ทุกมุมเปิดโล่งแบบ Open Plan เหมือนกับการใช้พื้นที่อเนกประสงค์ใต้ถุนบ้านไทยแบบเดิมๆ ส่วนชั้นบนมีเพียงแค่สองห้องนอน คือห้องที่อยู่ส่วนหน้าบ้านและห้องที่อยู่ส่วนหลังบ้านทำให้เกิดความเป็นส่วนตัวระหว่างกัน
“ที่คอร์ตกลางบ้านยังมีส่วนของบันไดที่เราเลือกใช้เหล็กรู แต่ไม่ได้เน้นให้ดูเท่นะ เพราะต้องการให้แสงจากหลังคาส่องลงมาถึงต้นไม้ข้างล่างได้ และทำให้ภายในบ้านโปร่งสว่างมากขึ้น ตอนกลางวันก็ไม่ต้องเปิดไฟหรือใช้เครื่องปรับอากาศเลย ช่วยประหยัดพลังงานและค่าไฟไปได้อีก”
ส่วนพื้นที่ห้องที่ต้องการความเป็นส่วนตัวและจำเป็นต้องมีผนังกั้น เช่น ห้องนอน และห้องน้ำ ถูกวางให้อยู่ชั้นสองทั้งหมด เพื่อให้บ้านทำผนังเท่าที่จำเป็น แต่เติมช่องหน้าต่างเพื่อมองเข้าหาวิวสวนไม้เลื้อยกลางบ้านได้อยู่

แม้ว่าพื้นที่ในบ้านจะมีขนาดจำกัด แต่คุณปริมก็ยังให้ความสำคัญกับพื้นที่ของการปลูกต้นไม้มากเป็นพิเศษ “ที่ชอบต้นไม้น่าจะได้มาจากแม่ค่ะ ตอนเด็กๆ ปริมช่วยแม่รดน้ำต้นไม้มาตลอด พอมีบ้านเราก็อยากมีพื้นที่ปลูกต้นไม้ด้วย ซึ่งคุณโปรเลือกเปิดคอร์ตไว้กลางบ้านเพื่อให้ต้นไม้ช่วยสร้างมุมมองสวยๆ ให้กับคนในบ้านได้มองเห็นจากทุกมุม แทนที่จะไปเน้นเรื่องงานตกแต่งอื่นๆ และด้วยปริมาณช่องแสงมุมนี้ปริมเลยเลือกปลูกไม้ใบไม้ประดับเป็นหลักซึ่งส่วนใหญ่เป็นพวกฟิโลและหน้าวัวใบ ทุกๆ เช้าเวลาเดินลงมาจากห้องนอนก็จะได้มานั่งดูต้นไม้พวกนี้ ได้เห็นการงอกใบใหม่ ได้เห็นแนวเลื้อยที่เพิ่มสูงขึ้น มันเหมือนได้เจอเรื่องเซอร์ไพร้ส์เล็กๆ ที่ทำให้เรามีความสุขได้ทุกวันค่ะ”
สุดท้ายแล้วความงามของบ้านหลังนี้หาใช้การตกแต่งไม่ แต่คือการถูกเติมเต็มด้วยการใช้งาน ความชอบ และความสนใจที่ลงตัว ไม่ว่าจะต้นไม้ประดับ งานคราฟท์ และงานศิลปะซึ่งจะค่อย ๆ เติบโตเพิ่มเรื่องราวไปพร้อมกับการใช้ชีวิตของเจ้าของบ้านต่อไปในอนาคตนั่นเอง








เจ้าของ : คุณปาริชาติ พัดบุรี
สถาปนิก : Studio Locomotive
เรื่อง : Studio Locomotive , ภัทรสิริ โชติงพงศ์สันติ์
ภาพ : Beer Singnoi
เรียบเรียง วุฒิกร สุทธิอาภา