หลักการออกแบบ แปลนคาเฟ่ พร้อมตัวอย่างพื้นฐาน - บ้านและสวน
แปลนคาเฟ่

หลักการออกแบบ แปลนคาเฟ่ พร้อมตัวอย่างพื้นฐาน

การออกแบบ แปลนคาเฟ่ ให้เหมาะกับพื้นที่ เราควรทราบระยะและขนาดมาตรฐานของพื้นที่ใช้งานส่วนต่างๆ เสียก่อน ไม่ว่าจะเป็นเคาน์เตอร์เตรียมอาหาร เคาน์เตอร์บาร์ รวมไปถึงการจัดวางโต๊ะ – เก้าอี้เพื่อให้พนักงานทำงานได้สะดวกและลูกค้าสามารถเข้าถึงบริการได้ง่าย ทั้งยังเพื่อให้มั่นใจว่ามีพื้นที่เหลือเพียงพอสำหรับจัดวางอุปกรณ์และของตกแต่งร้านตามที่คุณตั้งใจไว้

บ้านและสวน School มีระยะและขนาดมาตรฐานของพื้นที่ใช้งานส่วนต่างๆ มาฝาก

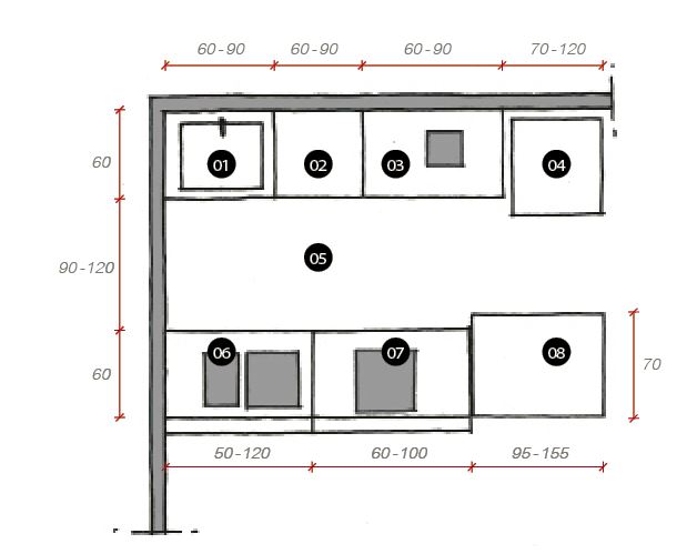
เคาน์เตอร์เตรียมอาหาร

พื้นที่สำคัญสำหรับใช้เตรียมทุกเมนูไม่ว่าจะอาหารหรือเครื่องดื่ม มีการใช้งานหลัก 8 ส่วน ตามตัวอย่าง ได้แก่

01 พื้นที่ล้างจาน

02 ตู้เก็บน้ำแข็ง

03 พื้นที่วางเครื่องปั่นและเตรียมเครื่องดื่มควรอยู่ระหว่างตู้แช่เย็นกับอ่างล้างจาน

04 ตู้แช่เย็น ปกติมีความกว้าง 60 – 110 เซนติเมตร จึงควรเตรียมพื้นที่เผื่อให้มีช่องระบายความร้อนด้านข้างและด้านหลัง

05 ทางเดิน

06 พื้นที่วางเครื่องชงกาแฟและบดเมล็ดกาแฟ

07 พื้นที่วางเครื่องคิดเงินและมุมเสิร์ฟเครื่องดื่มและขนม

08 พื้นที่วางตู้แช่เค้ก ปกติมีความยาว 90 – 150 เซนติเมตร จึงควรเผื่อพื้นที่ด้านข้างไว้ 5 เซนติเมตร สำหรับเคลื่อนย้ายได้สะดวก

(หากมีบริการอาหารหนัก ควรเพิ่มเตาประกอบอาหาร เครื่องดูดควัน เตาอบ เตาไมโครเวฟ และใช้อ่างล้างจานแบบสองหลุม หรือแยกห้องครัวไว้ด้านหลังก็จะไม่มีกลิ่นขณะปรุงอาหารรบกวนลูกค้า)

เคาน์เตอร์บาร์

สำหรับร้านที่มีพื้นที่จำกัด หากต้องการเพิ่มที่นั่งสำหรับลูกค้าหรืออยากนำเสนอประสบการณ์การชงกาแฟแบบพิเศษ และสามารถพูดคุยกับลูกค้าได้ ควรทำเคาน์เตอร์บาร์ให้อยู่ติดกับเคาน์เตอร์ โดยสามารถทำได้ 2 แบบคือ

  • เคาน์เตอร์บาร์ระดับเดียว สำหรับให้ลูกค้านั่งเท่านั้น

  • เคาน์เตอร์บาร์สองระดับสำหรับให้พนักงานทำงานไปด้วยได้

ระยะการจัดโต๊ะภายในร้าน

การเลือกขนาดและการจัดโต๊ะ - เก้าอี้มีความสัมพันธ์กับขนาดพื้นที่ภายในร้านอย่างมาก สำหรับร้านขนาดเล็กที่มีบริการเฉพาะเครื่องดื่มและขนม ควรจัดวางโต๊ะที่มีขนาดเล็กไม่เกิน 60 เซนติเมตรและมีระยะห่างจากกันน้อยที่สุด แต่ถ้ามีบริการอาหารที่ต้องใช้พื้นที่ในการวางจานหรือจัดเสิร์ฟมากกว่า ควรใช้โต๊ะขนาดมาตรฐานเพื่อให้ใช้งานได้ถนัดและสะดวก

 

การจัดโต๊ะกลม

ขนาด 60 เซนติเมตร

  • ระยะห่างระหว่างโต๊ะแต่ละตัวควรไม่น้อยกว่า 65 เซนติเมตร
  • ระยะห่างระหว่างโต๊ะกับทางเดินควรไม่น้อยกว่า 130 เซนติเมตร

การคำนวณจำนวนคนนั่งโดยประมาณ = 0.5 ตารางเมตรต่อคน

การจัดโต๊ะสี่เหลี่ยม

ขนาด 60 เซนติเมตร

  • ระยะห่างระหว่างโต๊ะแต่ละตัวควรไม่น้อยกว่า 50 เซนติเมตร
  • ระยะห่างระหว่างโต๊ะกับทางเดินควรไม่น้อยกว่า 100 เซนติเมตร

การคำนวณจำนวนคนนั่งโดยประมาณ = 0.54 ตารางเมตรต่อคน

การจัดโต๊ะกลม

ขนาด 80 - 85 เซนติเมตร

  • ระยะห่างระหว่างโต๊ะแต่ละตัวควรไม่น้อยกว่า 65 เซนติเมตร
  • ระยะห่างระหว่างโต๊ะกับทางเดินควรไม่น้อยกว่า 130 เซนติเมตร

การคำนวณจำนวนคนนั่งโดยประมาณ = 0.68 ตารางเมตรต่อคน

การจัดโต๊ะสี่เหลี่ยม

ขนาด 80 - 85 เซนติเมตร 

วางโต๊ะ 45 องศา

  • ระยะห่างระหว่างโต๊ะแต่ละตัวควรไม่น้อยกว่า 50 เซนติเมตร
  • ระยะห่างระหว่างโต๊ะกับทางเดินควรไม่น้อยกว่า 100 เซนติเมตร

การคำนวณจำนวนคนนั่งโดยประมาณ = 0.83 ตารางเมตรต่อคน

วางโต๊ะ 90 องศา

  • ระยะห่างระหว่างโต๊ะแต่ละตัวควรไม่น้อยกว่า 135 เซนติเมตร
  • ระยะห่างระหว่างโต๊ะกับทางเดินควรไม่น้อยกว่า 180 เซนติเมตร

การคำนวณจำนวนคนนั่งโดยประมาณ = 1.33 ตารางเมตรต่อคน

เมื่อทราบขนาดของพื้นที่ใช้สอยแต่ละส่วนแล้ว ก็จะสามารถออกแบบแปลนคาเฟ่ได้อย่างเหมาะสม ทั้งในแง่การใช้งานและความสวยงาม

ข้อมูลจาก: 100 Best Design Cafes

เรื่อง กองบรรณาธิการนิตยสาร Room

ภาพประกอบ คณาธิป จันทร์เอี่ยม