ตอบโจทย์การอยู่อาศัยของทุกเจเนอเรชั่นในสไตล์ Modern Loft สุดเท่
เพราะบ้านคือศูนย์รวมของกำลังใจจากคนที่รัก จึงไม่แปลกหากการอยู่ร่วมกันแบบครอบครัวขยายจะสร้างความรู้สึกอบอุ่นทั้งกายและใจให้เราได้มากกว่าการแยกตัวไปอยู่คนเดียว ขณะเดียวกันก็ต้องยอมรับว่าคนต่างเจเนอเรชั่นก็ย่อมมีความคิดและไลฟ์สไตล์ที่ต่างกัน ดังนั้นการสร้างบ้านเพื่อสมาขิกต่างเจเนอเรชั่นจึงเป็นอีกหนึ่งโจทย์ที่ใครหลายคนกำลังคิดหาคำตอบอยู่
เราขอแนะนาให้รู้จัก SEACON home ศูนย์รับออกแบบและสร้างบ้านที่วันนี้จะมาทาหน้าที่เป็นที่ปรึกษาในเรื่องนี้ พร้อมแนะนาบ้าน “Modern Bangkok 15” ไม่ว่าครอบครัวของคุณจะประกอบด้วยสมาชิกกี่เจเนอเรชั่น ก็สามารถตอบทุกโจทย์ทุกการอยู่อาศัย พร้อมออกแบบแปลนบ้านให้อย่างลงตัว ทั้งพื้นที่ส่วนรวมสำหรับทำกิจกรรมของครอบครัว ขณะเดียวกันก็คงรักษาความเป็นส่วนตัวของสมาชิกแต่ละวัยเอาไว้อย่างพอเหมาะ รวมทั้งเสนอไอเดียการแต่งบ้านสไตล์ ‘Modern Loft’ ที่ให้บรรยากาศร่วมสมัย ขณะเดียวกันก็ดิบเท่อย่างลงตัว

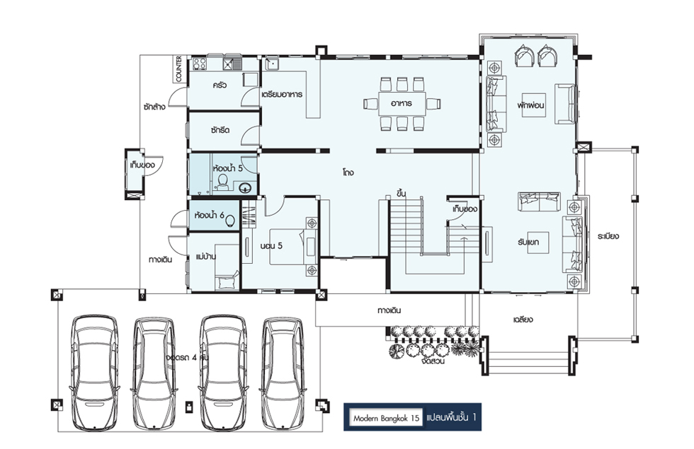
Modern Bangkok 15 บ้านเดี่ยวขนาด 2 ชั้นกับสถาปัตยกรรมร่วมสมัยแฝงกลิ่นอายคลาสสิกในสไตล์ Modern Tropical ที่โดนใจทั้งสมาชิกรุ่นใหญ่ ขณะเดียวกันก็ร่วมสมัยถูกใจสมาชิกรุ่นเล็ก จุดเด่นอีกข้อของบ้าน Modern Bangkok 15 คือพื้นที่ใช้สอยขนาด 602 ตร.ม. ที่สามารถวางแปลนได้หลากหลาย ทั้งพื้นที่ส่วนตัวที่ตอบโจทย์ไลฟ์สไตล์ที่แตกต่างของสมาชิกต่างเจเนอเรชั่น ขณะเดียวกันก็ไม่ละเลยพื้นที่ส่วนรวมให้กระซับความสัมพันธ์ของสมาชิกในบ้าน
เริ่มจากสถาปัตยกรรมสไตล์ Modern Tropical เป็นความลงตัวของเสน่ห์คลาสสิกกับโมเดิร์น โดยตัวบ้านให้ความสำคัญกับช่องแสง เพื่อให้พื้นที่ภายในสว่างไสวด้วยแสงธรรมชาติ นอกจากจะช่วยประหยัดไฟแล้ว ยังเสริมให้บ้านมีบรรยากาศผ่อนคลายและโปร่งโล่ง แม้จะเลือกตกแต่งในสไตล์ Modern Loft
![]()
พื้นที่ชั้นหนึ่งของบ้านประกอบด้วย ‘โถง’ กลางบ้านที่ให้เราเนรมิตเป็นห้องนั่งเล่นส่วนรวมสำหรับกระซับความสัมพันธ์ ลึกเข้าไปยังออกแบบให้มี ‘ห้องพักผ่อน’ ที่เราสามารถเปลี่ยนให้เป็นโรงหนังส่วนตัวหรือจะเปลี่ยนเป็นห้องหนังสือ และห้องทำงานอดิเรกก็ไม่ว่ากัน ขณะเดียวกันก็วางแปลนให้มี ‘ห้องรับแขก’ แยกเป็นสัดส่วน เพื่อรักษาความเป็นส่วนตัวจากบุคคลภายนอก
แน่นอนว่าชั้นหนึ่งของบ้าน Modern Bangkok 15 ยังประกอบด้วย ‘ห้องครัว’ พร้อมโซนจัดเตรียมอาหาร ซึ่งเราสามารถออกแบบให้เป็นทั้งครัวสไตล์ยุโรปหรือจะเป็นครัวไทยก็ย่อมได้ นอกจากนี้ชั้นหนึ่งของบ้านยังออกแบบให้มี ‘ห้องนอน’ สำหรับสมาชิกรุ่นใหญ่ ซึ่งไม่ต้องกังวลเรื่องการขึ้นลงบันได ส่วนใครชอบนั่งเล่นเอ้าท์ดอร์บ้าน Modern Bangkok 15 ยังมีพื้นที่เฉลียงและระเบียง ซึ่งเราสามารถเนรมิตให้เป็นสวนขนาดเล็กสำหรับนั่งพักผ่อนหย่อนใจได้อีกด้วย
ส่วนชั้น 2 ของบ้านประกอบด้วย 4 ห้องนอน 4 ห้องน้ำ 1 พื้นที่พักผ่อน และ 1 ห้องพระ ซึ่งเรียกได้ว่าครบครันทั้งความเป็นส่วนตัว โดยไม่ทิ้งสายสัมพันธ์ของครอบครัว โดยเฉพาะห้องนอนทั้ง 4 ห้องมาพร้อมห้องน้ำและห้องแต่งตัวภายในตัว รวมทั้งระเบียงที่สามารถออกแบบเป็นสวนหย่อมได้ตามใจชอบ จุดนี้จึงกลายเป็นจุดเด่นที่ถูกออกแบบให้สมาชิกมีพื้นที่ส่วนตัว ขณะเดียวกันห้องนอนทั้งหมดก็เชื่อมกันด้วยพื้นที่พักผ่อนที่เราสามารถออกแบบให้เป็นห้องนั่งเล่นแบบเปิดโล่ง เพื่อให้สมาชิกที่ผ่านไปมาได้แวะทักทายก่อนเข้าห้องนอนนั่นเอง
![]()
INSPIRE YOUR DESIGN
ด้วยพื้นที่ใช้สอยที่กว้างขวางและการดีไซน์สถาปัตยกรรมที่เน้นความโปร่งโล่งภายในบ้าน ทำให้บ้าน Modern Bangkok 15 ง่ายต่อการตกแต่งภายใน ซึ่งในวันนี้เราขอยกไอเดียการแต่งบ้านสไตล์ ‘Modern Loft’ ที่ครบครันทั้งบรรยากาศเท่ๆ มีเสน่ห์ พร้อมด้วยฟังก์ชั่นที่ตอบโจทย์การอยู่อาศัยของสมาชิกทุกวัย
เสน่ห์อย่างหนึ่งของสไตล์ Modern Loft เป็นการผสมผสานของความร่วมสมัยเข้ากับการแสดงให้เห็นถึงสัจจะวัสดุ ส่วนมากคนแต่งบ้านสไตล์ลอฟท์มักเลือกใช้เหล็ก ไม้ และปูนเปลือยเป็นวัสดุหลัก เติมความร่วมสมัยด้วยดีไซน์โมเดิร์นจากเฟอร์นิเจอร์ที่ให้ความรู้สึกเก๋แต่เรียบง่าย ซึ่งความโมเดิร์นของเฟอร์นิเจอร์จะไปช่วยลดทอนความดิบของลอฟท์ให้ละมุนลง กลายเป็นสไตล์โมเดิร์นลอฟท์ที่มีเสน่ห์นั่นเอง
![]()
โดยปกติตัวโครงสร้างของบ้าน มักออกแบบให้เห็นสัจจะวัสดุ อย่างผนังเป็นปูนเปลือยฉาบเรียบ บ้างก็ออกแบบให้เป็นผนังปูนเปลือยขัดมัน หรือจะเป็นผนังอิฐมอญโชว์แนวดูดิบๆ โดยสัญลักษณ์หนึ่งที่แสดงถึงความเป็นลอฟท์คือการเปิดเปลือยเพดานให้เห็นท่อสายไฟซึ่งให้ความรู้สึกเชื่อมพื้นที่ของบ้านเข้าด้วยกัน
หากเลือกแต่งผนังบ้านด้วยปูนเปลือยในโทนสีทึบแล้ว เฟอร์นิเจอร์ที่เลือกมาตกแต่งจึงควรมีดีไซน์โปร่ง เพื่อไม่ให้บ้านดูทึบตัน อาจเลือกเป็นเฟอร์นิเจอร์จากเหล็กหรือไม้จริงสีเข้มที่ยังคงเสน่ห์ความเป็นลอฟท์ หรือจะเลือกวางเฟอร์นิเจอร์สีสดใสเพื่อตัดความทึบของสไตล์ลอฟท์ก็ได้เช่นกัน ทั้งนี้อย่าลืมเลือกเฟอร์นิเจอร์ที่มีรูปทรงโมเดิร์น เพื่อเสริมบรรยากาศร่วมสมัยให้บ้าน


ตัวอย่าง โถงกลางบ้านที่เลือกเปิดเป็นพื้นที่ดับเบิ้ลสเปซ ซึ่งเพดานที่สูงผนวกกับการออกแบบให้มีช่องแสงรอบบ้าน จะเสริมให้พื้นที่ส่วนนี้โปร่งโล่ง ยิ่งเลือกวางเฟอร์นิเจอร์น้อยชิ้นและดีไซน์บันไดลอยก็ยิ่งขับให้บ้านดูโปร่งน่าสบายยิ่งขึ้น หรือห้องครัวและพื้นที่รับประทานอาหารสามารถเลือกใช้หินอ่อนสีขาวมาเสริมความหรูหราให้บ้านหรือจะเบรกด้วยสีน้ำตาลของเฟอร์นิเจอร์ก็ขับให้มุมนี้มีมิติ โดยไม่ทิ้งสไตล์โมเดิร์นลอฟท์ที่เราตั้งใจไว้
อย่างที่กล่าวไปแล้วว่าการแต่งบ้านสไตล์โมเดิร์นลอฟท์ แนะนำให้เลือกใช้เฟอร์นิเจอร์ดีไซน์โปร่ง อย่างชั้นวางหนังสือและของสะสม อาจเลือกเป็นโครงเหล็กสีดำที่นำมาบิวท์อินตลอดความยาวของผนังบ้าน เพิ่มลูกเล่นด้วยดีไซน์จากรูปทรงที่แตกต่าง ไม่ลืมเติมความสดชื่นผ่านธรรมชาติ โดยสีเขียวของต้นไม้ทรงสวย เมื่อนำมาจัดวางตัดกับสีเทาของปูนเปลือย จะยิ่งขับให้บ้านมีเสน่ห์ยิ่งขึ้น
![]()
อย่างที่กล่าวไปแล้วว่าข้อดีอย่างหนึ่งของบ้าน Modern Bangkok 15 คือมีช่องแสงเปิดรับแสงธรรมชาติรอบบ้าน ดังนั้นแม้จะแต่งสไตล์โมเดิร์นลอฟท์ก็ทำให้บ้านมีบรรยากาศม่นทึบ เพราะแสงธรรมชาติที่สาดส่องเข้ามาจะช่วยขับให้บ้านอบอุ่น ขณะเดียวกันก็ยังช่วยเสริมเสน่ห์สไตล์โมเดิร์นลอฟท์ให้โดดเด่นยิ่งขึ้นอีกด้วย
ทั้งหมดนี้เป็นเพียงไอเดียเท่านั้น แต่หากคุณอยากได้บ้านที่ตอบโจทย์การอยู่อาศัยของสมาชิกทุกเจเนอเรชั่น สามารถสอบถามได้ที่ SEACON home ศูนย์รับออกแบบและสร้างบ้าน หรือข้อมูลเพิ่มเติมเกี่ยวกับแบบแปลนบ้านหรือไอเดียบ้านได้ที่ www.seaconhome.co.th