ใช้ชีวิตในทุกๆ วันให้เหมือนวันพักผ่อน ผ่านที่อยู่อาศัยที่ตอบโจทย์
เพราะในทุกๆ วันเราต่างต้องแข่งขันกับเวลาและเคร่งเครียดกับการทำงาน จะดีแค่ไหนถ้า “ที่อยู่อาศัย” กลายเป็นส่วนสำคัญที่ช่วยเติมเต็มความรู้สึก ปลุกความสดชื่น พร้อมคลายความเหนื่อยล้าจากการทำงานได้ วันนี้ “SEACONhome รับสร้างบ้าน” จึงได้นำตัวอย่างแบบบ้าน “Modern Bangkok 14” บ้านเดียวสไตล์ “Modern Tropical” ที่จะทำให้ทุกๆ วันของเรากลายเป็นวันพักผ่อนที่แสนสุขใจมาฝากชาวบ้านและสวนกันแล้วครับ

“Modern Bangkok 14” เป็นแบบบ้านสำเร็จรูปจาก “SEACONhome รับสร้างบ้าน” มาพร้อมกับสไตล์ “Modern Tropical” ที่เหมาะกับประเทศที่ตั้งอยู่ในเขตร้อนชื้นอย่างประเทศไทยเป็นอย่างดี โดยแบบบ้านหลังนี้จะใช้พื้นที่ปลูกสร้างเพียง 143 ตร.วา แต่ให้พื้นที่ใช้สอยโดยรวมกว่า 652 ตร.ม. สามารถรองรับครอบครัวที่มีสมาชิกมากกว่า 3 คนขึ้นไปได้อย่างสบายๆ
![]()
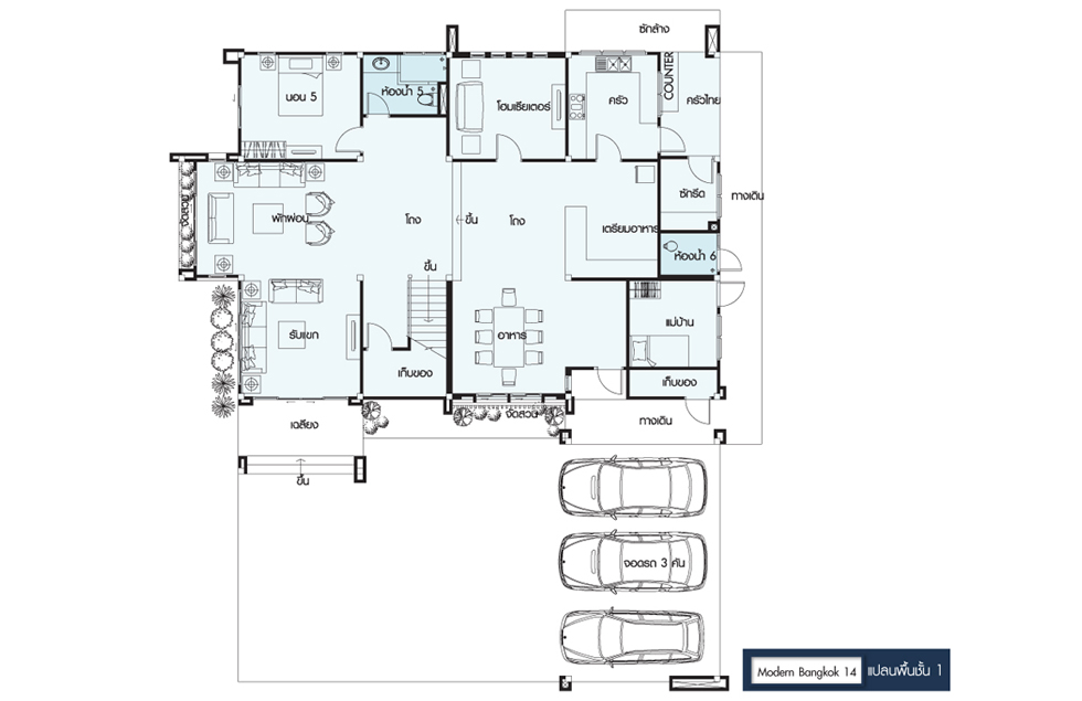
ด้วยความที่ Modern Bangkok 14 ถูกออกแบบมาในสไตล์ Modern Tropical จึงทำให้ตัวบ้านมีความโล่ง โปร่ง สะอาดตา ซึ่งเมื่อมองจากแปลนพื้นชั้นแรกจะพบกับความโล่งของตัวบ้านจากการแยกโรงจอดรถออกมาไว้บริเวณภายนอกเพื่อลดปัญหาเรื่องเสียงรบกวนและความสกปรกที่อาจเกิดขึ้น นอกจากนี้ด้วยความที่แปลนบ้านถูกออกแบบมาให้มีลักษณะเกือบสมมาตรจึงทำให้การจัดวางผังห้องมีความเป็นสัดเป็นส่วน ยิ่งโดยเฉพาะการให้บริเวณทางเข้าและห้องรับแขกอยู่ในบริเวณเดียวกัน จึงทำให้ผู้อยู่อาศัยไม่รู้สึกสูญเสียความเป็นส่วนตัวภายในบ้านเท่าใดนัก
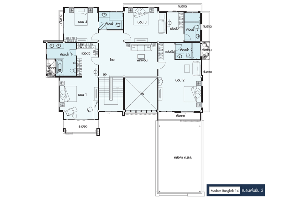
จากนั้นเมื่อขึ้นมายังบริเวณชั้น 2 จะพบกับการจัดวางแผนผังของแปลนพื้นชั้นบนที่เมื่อเราเดินขึ้นมาจากบันไดก็จะพบกับพื้นที่ผักผ่อนและโถงขนาดใหญ่อยู่กลางตัวบ้าน ซึ่งโถงนี้ยังมีการเชื่อมต่อกับบรรดาห้องนอนขนาดใหญ่ที่ภายในมีโซนนั่งเล่น พื้นที่แต่งตัว และห้องน้ำเป็นของตัวเองอีกด้วย ซึ่งเมื่อรวมเข้ากับสไตล์ Modern Tropical ที่เป็นแนวคิดหลักของตัวบ้าน จึงทำให้มีการเล่นกับสเปซที่เปิดโล่งและมีมุมจัดสวนส่วนตัวเล็กๆ ให้สมาชิกได้สร้างสรรค์อยู่ทางด้านบน
และเพราะตัวบ้านมีความเป็น Modern Tropical ที่เน้นการออกแบบด้วยเส้นสายที่มีความเรียบง่าย จึงทำให้เราสามารถตกแต่งบ้านในสไตล์ต่างๆ ได้อย่างไม่ขัดเขินไม่ว่าจะเป็น Modern, Modern Loft และ Minimal ซึ่งเราได้นำไอเดียการตกแต่งบางส่วนมาฝากชาวบ้านและสวนในวันนี้กันแล้วครับ
![]()
เริ่มต้นในส่วนของพื้นที่ “ห้องรับแขก” ด้วยความที่ตัวบ้านแบบ Modern Tropical จะเน้นไปที่ความโล่ง โปร่ง ของสเปซจึงทำให้เราสามารถเพิ่มลูกเล่นในส่วนของโคมไฟแขวนบริเวณเหนือที่นั่ง ทางด้านเฟอร์นิเจอร์อาจเลือกใช้การตกแต่งแบบ “Minimal” เน้นโทนสีที่สะอาดตา ดีไซน์เรียบ พร้อมแซมด้วยสีเขียวจากต้นไม้ ที่นอกจากจะทำให้รู้สึกผ่อนคลาย สบายตาแล้ว ยังช่วยปลุกความสดชื่นในแบบฉบับ Tropical ได้เป็นอย่างดี
![]()
ทางด้าน “ห้องครัว” และบริเวณรับประทานอาหาร อาจเลือกใช้การตกแต่งประเภท “Comtemporary Style” ที่ให้กลิ่นอายของความเป็น Modern พร้อมขับความเรียบ โล่ง และโปร่ง ของตัวบ้านที่เป็นสไตล์ Modern Tropical ให้ดูกระฉับกระเฉงและตื่นตัวรับวันใหม่อยู่เสมอ
![]()
และท้ายสุดกับ “ห้องนอน” ที่ถือเป็นห้องที่มีการใช้งานมากที่สุดภายในบ้าน การตกแต่งจึงอาจเน้นไปที่ความ “Minimal” ที่มีความเรียบง่าย โทนสีสบายตา แต่ยังคงไม่ทิ้งลูกเล่นของความเป็น Tropical ด้วยการเลือกลายผ้าปูที่นอนและงานกราฟฟิกสีสันสดใสบริเวณหัวเตียง ให้อารมณ์เหมือนเราได้พักผ่อนเพื่อเติมเต็มความสดชื่นให้กับตัวเองในทุกๆ วัน
และนี่ก็เป็นไอเดียการตกแต่งคร่าวๆ ของแบบบ้าน “Modern Bangkok 14” ที่เราได้นำมาฝากกันในวันนี้ หากชาวบ้านและสวนท่านใดที่สนใจ สามารถสอบถามรายละเอียดได้ที่ “SEACONhome รับสร้างบ้าน” หรือศึกษาข้อมูลเพิ่มเติมเกี่ยวกับแปลนบ้านหรือไอเดียได้ที่ www.seaconhome.co.th