แบบครัวปูน 4 แบบ สวยแกร่ง สวยทน ใช้งานได้นาน - บ้านและสวน
ครัวปูน

ครัวปูน 4 แบบ สวยแกร่งสวยทน

หลังจากที่คราวก่อนแนะนำแบบครัวไทยหลังบ้านสำหรับพื้นที่ต่อเติมไปแล้ว คราวนี้จะแนะนำอีกหนึ่งรูปแบบครัวที่เชื่อว่าคนไทยคุ้นเคยกันดี นั่นคือ แบบครัวปูน

ครัวปูน เป็นรูปแบบการก่อสร้างครัวที่ใช้อิฐก่อฉาบปูนเป็นวัสดุหลักในการสร้างเคาน์เตอร์ จึงถูกเรียกติดปากว่าครัวปูน ส่วนมากนิยมสร้างให้เป็นครัวไทยหลังบ้าน สำหรับใช้งานหนักๆ หรือบ้านตามต่างจังหวัดเองก็มักจะสร้างครัวปูนให้เป็นส่วนใช้งานหลักอยู่เสมอ สำหรับใครที่กำลังมองหาแบบครัวปูน วันนี้เว็บไซต์บ้านและสวนมี 3 แบบครัวปูน มาแนะนำค่ะ

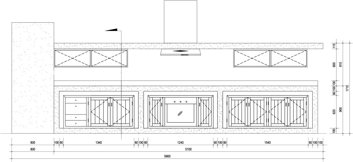
1 ครัวลอฟต์ดำเทา สำหรับตึกแถวและทาวน์เฮ้าส์

ครัวปูนสไตล์ลอฟต์ สีดำเทา สำหรับตึกแถวและทาวน์เฮ้าส์ แบบครัวปูน

ขนาดพื้นที่ : 3 x 3 เมตร

ราคาโดยประมาณ : 140,000 บาท

สำหรับบ้านตึกแถว ทาวน์เฮาส์ ที่ต่อเติมพื้นที่ใช้งานจนเต็ม ครัวนี้เหมาะเป็นอย่างยิ่งเพราะเป็นครัวที่ถูกสร้างขึ้นบนชั้นสองของบ้านตึกแถว โดยเราสามารถสร้างครัวรูปแบบนี้ให้อยู่บนชั้นหนึ่งได้ ครัวนี้ใช้บานเฟี้ยมกั้นพื้นที่จากส่วนอื่นๆลดปัญหาเรื่องกลิ่น ใช้กระเบื้องกรุตกแต่งเพิ่มความสวยงามสลับกับปูนเปลือยขัดมัน และใช้ตะแกรงเหล็กฉีกตกแต่งให้ดูเท่ยิ่งขึ้น สิ่งสำคัญของครัวนี้คือการวางระบบท่อให้ดูสวยงาม โดยอาจจะใช้ท่อระบายน้ำเดิมบริเวณระเบียงดาดฟ้าเป็นท่อน้ำทิ้งและต่อท่อน้ำดีจากห้องน้ำอีกที

2 สีส้มสดใสครัวปูนไม่มีกลิ่นอับ

ครัวปูน แบบเคาน์เตอร์ครัวปูน แบบครัวปูน

ขนาดพื้นที่ : 3 x 3 เมตร

ราคาโดยประมาณ 450,000 บาท

ครัวแบบที่2 เป็นครัวปูนที่สดใสขึ้นทันทีเมื่อเลือกใช้ผนังสีส้มสด ตัดกับความจัดจ้านของเหล่าอุปกรณ์ของใช้ เป็นแบบครัวปูนที่เหมาะกับทาวน์เฮ้าส์และบ้านเดี่ยว โดยฝั่งเตาแก๊สซึ่งเป็นส่วนปรุงให้ติดกับตัวเคาน์เตอร์ ต่อเนื่องเป็นซิงค์ล้างจาน พร้อมสร้างกล่องตู้เย็นให้ต่อเนื่องกันเป็นพื้นที่ใช้งานในแนวเดียวกัน สำหรับครัวปูนห้ามลืมเคลือบน้ำยาปูนซีเมนต์เพื่อให้ง่ายในการทำความสะอาด

ดูแบบครัวปูนหน้า 2