Ogimachi House บ้านไร้หน้าต่าง เปิดวิวท้องฟ้าผ่านหลังคาสกายไลท์ - room

Ogimachi House บ้านไร้หน้าต่าง เปิดวิวท้องฟ้าผ่านหลังคาสกายไลท์

บ้านไม้ทรงกล่องสองชั้นที่ล้อมด้วยผนังไม้สนยาวตลอดเเนว กลายเป็นฟาซาดดูเด่นกว่าบ้านละเเวกใกล้เคียง มาพร้อมคอนเซ็ปต์ปิดล้อมเพื่อสร้างความเป็นส่วนตัวท่ามกลางบรรยากาศเงียบสงบ ฉีกกฎด้วยการยกช่องเปิดทั้งหมดให้ขึ้นไปอยู่บนหลังคาเเทน จนเเทบไม่ต้องมีหน้าต่างเลยสักบานOgimachi House 

Ogimachi House ตั้งอยู่ที่เมืองนะโงะยะ ประเทศญี่ปุ่น ซึ่งเกิดขึ้นจากความรักของลูกชายที่ตั้งใจอยากสร้างบ้านให้คุณเเม่ที่กำลังป่วย ได้พักฟื้นในบรรยากาศที่เป็นส่วนตัวเเละเงียบสงบ จากความต้องการดังกล่าวกลายเป็นโจทย์ให้ Tomoaki Uno Architects เลือกออกแบบบ้านด้วยไม้สนซีดาร์เเละไม้สนไซเปรส เเต่ในความเรียบง่ายเป็นธรรมชาติกลับมีสิ่งน่าสนใจคือ ไม่ว่าจะมองมุมไหน ก็เเทบไม่เห็นหน้าต่างเลยสักบาน!

Ogimachi HouseOgimachi House

ซึ่งความน่าประหลาดใจที่สร้างคำถามให้เเก่ผู้คนที่พบเห็นนี้ มาจากการอยากรักษาความเป็นส่วนตัวให้แก่คุณเเม่เจ้าของบ้านมากที่สุด ภายใต้บรรยากาศการพักอาศัยที่เงียบสงบ ปลอดจากสิ่งเร้าเเละเสียงรบกวนต่าง ๆ โดยรอบ

Ogimachi HouseOgimachi HouseOgimachi HouseOgimachi House

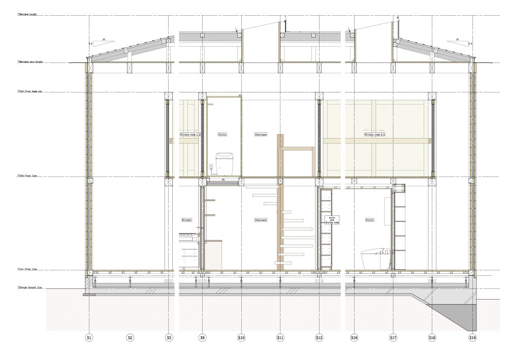
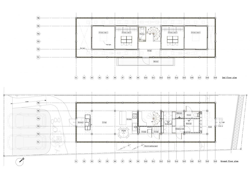
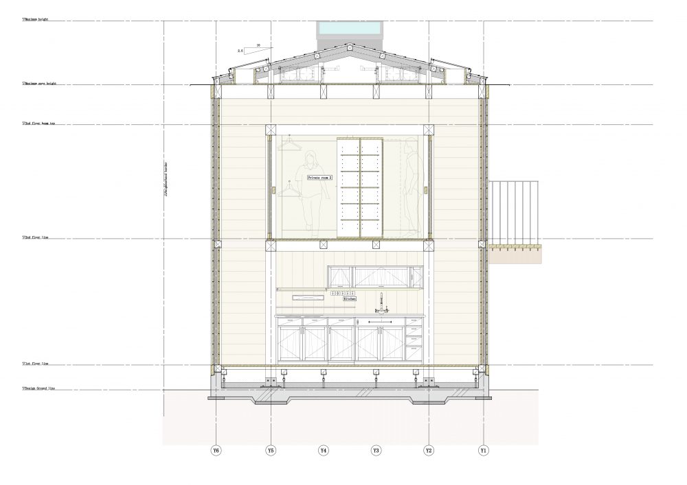
ตัวอาคารทั้งหลังสร้างขึ้นจากไม้สนที่มีสีเเละลวดลายที่สวยงาม โดยใช้เทคนิคการเข้าไม้เเบบ “ITAKURA” ไม่ใช้นอต หรือตะปูใด ๆ เป็นตัวยึด ซึ่งเป็นภูมิปัญญาการสร้างบ้านดั้งเดิมของชาวญี่ปุ่น เเล้วเลือกที่จะเปิดรับเเสงธรรมชาติ วิวท้องฟ้า เเละการถ่ายเทอากาศที่ดีจากช่องหลังคาสกายไลท์ขนาดใหญ่ 5 บาน ที่สามารถเปิด-ปิดได้ ร่วมกับช่องเเสงอีก 32 ช่อง ที่ออกแบบให้ยาวตลอดเเนวหลังคาเเทน

Ogimachi HouseOgimachi House

Ogimachi HouseOgimachi HouseOgimachi House
ขณะที่การออกแบบพื้นที่ใช้สอยภายในได้เเบ่งพื้นที่ออกเป็น 2 ชั้น ทันทีที่เปิดประตูหน้าบ้านซึ่งเนียนไปกับผนังด้านนอกเข้ามา จะพบกับพื้นที่เเบบเปิดโล่งมีทั้งมุมนั่งเล่น มุมรับประทานอาหาร ห้องน้ำ และห้องซักรีด ด้านข้างเว้นสเปซสำหรับเป็นทางเดินที่มีเพดานสูงโปร่งเเบบดับเบิ้ลสเปซ ช่วยให้เเสงจากสกายไลท์กระจายลงมายังพื้นที่ชั้นล่างอย่างทั่วถึง ไม่อุดอู้เเละทึบตันเเม้จะไม่มีหน้าต่างเลยสักบานก็ตาม ก่อนจะขยับขึ้นสู่ห้องนอนส่วนตัวบนชั้น 2 ด้วยบันไดวนที่ทำจากไม้สนเช่นกัน โดยเมื่อหากมองลงมาด้านล่างขั้นบันไดวนนี้จะดูสวยคล้ายพัด หรือกลีบดอกไม้ที่ค่อย ๆ คลี่บาน

Ogimachi House           Ogimachi House Ogimachi House

ส่วนการตกแต่งภายใน ผู้ออกแบบเน้นจัดวางเฟอร์นิเจอร์เเละของใช้ในชีวิตประจำวันเท่าที่จำเป็นเพียงเท่านั้น เพื่อสื่อถึงความเรียบง่ายให้คุณเเม่ได้พักผ่อนอย่างเต็มที่ กระทั่งผลลัพธ์ของการสร้างบ้านหลังนี้ขึ้นมาก็เห็นผล ซึ่งทำให้ทุกคนต่างดีใจ เมื่อทราบว่าอาการป่วยของคุณเเม่เจ้าของบ้านค่อย ๆ ดีขึ้น นั่นจึงนับเป็นรางวัลที่นักออกแบบภาคภูมิใจ ภายใต้การทำงานที่เรามองว่าพวกเขากล้าที่จะฉีกกฎการออกแบบ เพราะใช่ว่าบ้านทุกหลังจะต้องมีหน้าต่างตามระนาบเเนวตั้งของผนังทางเดียวเสมอไปเท่านั้น!

Ogimachi HouseOgimachi House  

ออกแบบ : Tomoaki Uno Architects


ภาพ        : Ben Hosking
เรียบเรียง : Phattaraphon

#GlobalDesignUpdate