แบบต่อเติมครัวข้างบ้าน - บ้านและสวน

แบบต่อเติมครัวข้างบ้าน

แบบต่อเติมครัวข้างบ้าน จากหนังสือ 12 แบบต่อเติมครัว ชุดที่ 2

แบบต่อเติมครัว แบบต่อเติมครัวข้างบ้าน

01 หลังคาเอียงข้างเดียว

ถ้าผนังส่วนต่อเติมอยู่ชิดกับรั้วเพื่อนบ้าน ทำให้เจาะช่องหน้าต่างไม่ได้ การใช้หลังคาเพิงหมาแหงนที่ลาดเอียงมากหน่อยจะช่วยเพิ่มพื้นที่ผนังด้านบน จึงเจาะช่องแสงและช่องระบายอากาศได้มากขึ้น

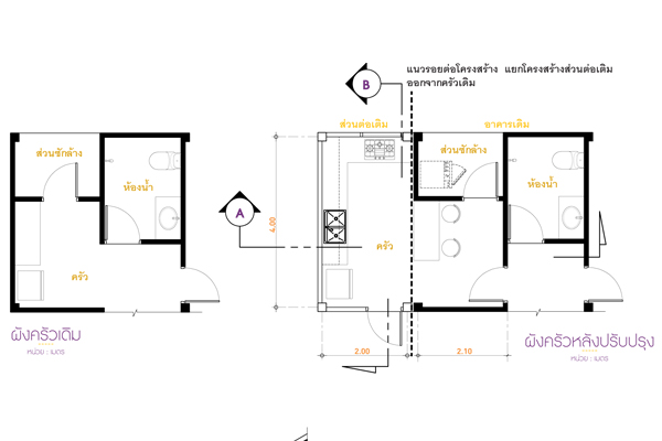
แบบต่อเติมครัว ผังครัวเดิม

ต่อเติมครัว ผังครัวหลังปรับปรุง

ต่อเติมครัวข้างบ้าน เพิงหมาแหงน แบบต่อเติมครัวข้างบ้าน

ถ้าชายคาอยู่ชิดรั้วน้อยกว่า 50 เซนติเมตร ต้องติดตั้งรางน้ำ

ต่อเติมครัวข้างบ้าน เพิงหมาแหงน

ต่อเติมครัวข้างบ้าน เพิงหมานแหงน รูปด้าน

ต่อเติมครัว หลังคาเอียงข้างเดียว


ต่อเติมครัว ครัวข้างบ้าน เพดานสูง

02 ฝ้าเพดานสูง

ครัวที่มีฝ้าเพดานสูงย่อมทำให้รู้สึกสบายกว่าครัวเพดานเตี้ย เลือกหลังคาจั่วที่มีองศาเอียงมากหน่อย นอกจากจะได้สเปซภายในที่โปร่งโล่งแล้ว ยังระบายน้ำฝนที่หลังคาได้ดีด้วย

ต่อเติมครัว ครัวข้างบ้าน เพดานสูง

ผังครัว ต่อเติมครัวข้างบ้าน

p12_kitchen_V2-C2-04

ผังต่อเติมครัว ครัวข้างบ้าน รูปด้านผังครัว

ผังต่อเติมครัว ครัวข้างบ้าน รูปด้านผังครัว


ต่อเติมครัว เรียบๆ ดูแลง่าย

03 เรียบๆ ดูแลง่าย

หลังคา Flat Slab มีรูปแบบที่เรียบง่าย ตรงไปตรงมา สามารถเข้ากับอาคาร (เดิม) ได้หลายสไตล์ อย่าลืมกำชับให้ช่างผสมน้ำยากันซึมลงในเนื้อคอนกรีตก่อนเทหลังคา ป้องกันน้ำรั่วซึมเข้าครัวในระยะยาว

ต่อเติมครัวข้างบ้านดูแลง่าย

ต่อเติมครัวข้างบ้านดูแลง่าย

ต่อเติมครัวดูแลง่าย

ต่อเติมครัวดูแลง่าย

ต่อเติมครัว ครัวข้างบ้านดูแลง่าย


ขอบคุณบทความและภาพประกอบจากหนังสือ 12 แบบต่อเติมครัว ชุดที่ 2

ติดตามข้อมูลดีๆจากบ้านและสวนที่นี่