Planning Design Café วางแปลนคาเฟ่ ให้ลงตัว ดีไซน์สวย ฟังก์ชั่นครบ - บ้านและสวน
วางแปลนคาเฟ่

Planning Design Café วางแปลนคาเฟ่ ให้ลงตัว ดีไซน์สวย ฟังก์ชั่นครบ

การออกแบบคาเฟ่นั้น นอกเหนือจากจะต้องคำนึงเรื่องดีไซน์แล้ว อีกสิ่งหนึ่งที่ไม่ควรมองข้ามคือฟังก์ชัน ที่ต้องไม่เป็นอุปสรรคต่อการทำงาน ซึ่งก่อนจะวางแปลนคาเฟ่ได้นั้นต้องทราบขนาดอุปกรณ์พื้นฐานของทุกองค์ประกอบ เมื่อทราบขนาดที่แน่นอนแล้วก็สามารถลงมือออกแบบแปลนพื้นที่ได้ทันที ซึ่งการวางแปลนนี้ขึ้นอยู่กับขนาดพื้นที่ที่คุณมี

บ้านและสวน School มีตัวอย่างการ วางแปลนคาเฟ่ 3 ขนาด คือ เล็ก กลางและใหญ่ ให้คุณนำไปประยุกต์ใช้กับพื้นที่ของร้านได้ง่ายขึ้น ดังนี้

SIZE S

พื้นที่ 3 x 3 เมตร ร้านขนาดเล็กที่อาจเป็นร้านสำเร็จรูปหรือใช้พื้นที่มุมใดมุมหนึ่งในอาคาร เหมาะกับการทำเคาน์เตอร์เป็นรูปตัวแอล (L) เพื่อให้สามารถใช้งานพื้นที่ได้อย่างคุ้มค่า

01 ชั้น / ตู้เก็บของติดผนัง
02 อ่างล้างจาน
03 ตู้ / ถังเก็บน้ำแข็งใต้เคาน์เตอร์
04 เครื่องปั่น
05 เครื่องบดเมล็ดกาแฟ
06 เครื่องชงกาแฟ
07 เครื่องเก็บเงิน
08 ตู้เย็นใต้เคาน์เตอร์
09 ประตูกั้นเคาน์เตอร์
10 เคาน์เตอร์บาร์
11 ที่นั่ง

SIZE M

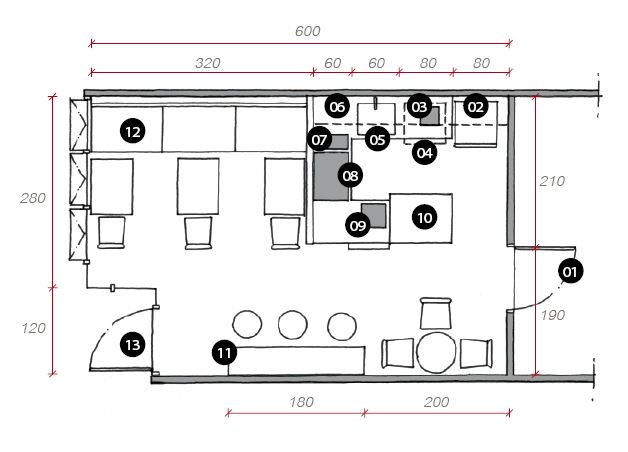
พื้นที่ 4 x 6 เมตร สามารถปรับใช้ในอาคารพาณิชย์ได้ โดยทำเคาน์เตอร์รูปตัวยู (U) สำหรับพนักงาน 1 – 2 คน ช่วยให้ทำงานได้รอบทิศทาง

01 ประตูออกหลังร้าน
02 ตู้เย็น
03 เครื่องปั่น
04 ตู้ / ถังเก็บน้ำแข็งใต้เคาน์เตอร์
05 อ่างล้างจาน
06 ชั้น / ตู้เก็บของติดผนัง
07 เครื่องบดเมล็ดกาแฟ
08 เครื่องชงกาแฟ
09 เครื่องเก็บเงิน
10 ตู้แช่เค้ก
11 เคาน์เตอร์บาร์
12 ที่นั่ง
13 ประตูหน้าร้าน

SIZE L

พื้นที่6x8เมตรร้านขนาดใหญ่อย่างร้านแบบสแตนด์อโลนหรือร้านในช็อปปิ้งมอลล์ เหมาะกับการทำเคาน์เตอร์แบบสองแถวเพื่อให้พนักงานทำงานได้พร้อมกันหลายคน

01 ประตูออกหลังร้าน
02 ห้องเก็บสต็อกวัตถุดิบ
03 ตู้เย็น
04 ตู้เก็บน้ำแข็ง
05 ชั้น / ตู้เก็บของติดผนัง
06 เครื่องปั่น
07 อ่างล้างจาน
08 ตู้แช่เค้ก
09 เครื่องชงกาแฟ
10 เครื่องบดเมล็ดกาแฟ
11 เครื่องเก็บเงิน
12 ประตูกั้นเคาน์เตอร์
13 พื้นที่ทำงานสำหรับยืน 2 คนขึ้นไป

ตัวอย่างแปลนคาเฟ่ที่ยกมานี้เป็นเพียงตัวอย่างพื้นฐานเพื่อให้ทราบแนวทางในการออกแบบคาเฟ่เท่านั้น หากคุณต้องการออกแบบจริงจะต้องคำนึงถึงขนาดและสัดส่วนพื้นที่ รวมทั้งฟังก์ชันการใช้งานที่เหมาะสมเป็นหลักด้วย

ข้อมูลจาก: 100 Best Design Cafes

เรื่อง กองบรรณาธิการนิตยสาร Room

ภาพประกอบ คณาธิป จันทร์เอี่ยม